5 Bedroom Semi-Detached
£635,000
Mill Hill, Weston Colville

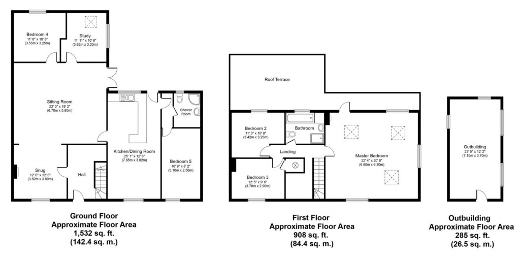
Floorplans For Mill Hill, Weston Colville
EPC Graph for Mill Hill, Weston Colville

Description


A substantial 5 bedroom semi-detached character home situated in a sought after village location and with delightful established gardens. The property has been sympathetically extended and benefits from a bright and spacious open plan living room and snug with roof lights, wood flooring and an open fireplace, a double aspect kitchen/dining room and a ground floor study and shower room. Additional features include a stunning first floor double aspect main bedroom with high vaulted ceilings, wood flooring and aspect over the gardens. A particular feature are the truly exceptional gardens extending to approximately 1/3 of an acre with a large outbuilding, ornamental ponds and a wealth of established trees and shrubs.

Entrance Hall - with solid wood flooring, storage cupboard and stairs rising to the first floor.

Snug - with solid wood flooring and an open fireplace.

Living Room - A bright and spacious room with solid wood flooring, 2 roof-lights and French doors leading to the rear garden.

Kitchen/Dining Room - A fitted kitchen with units and drawers with worktops over, inset double sink and drainer., tiled floor, a door leading to the rear garden.

Study - with view over garden, a Velux window and solid wood flooring.

Bedroom 4 - with solid wood flooring.

Rear Lobby -

Bedroom 5 - with extra insulation and triple glazing.

Shower Room - with a tiled shower cubicle, vanity sink unit, low level WC, heated towel rail.

First Floor -

Landing - with access to roof space.

Primary Bedroom - An enormously impressive room with a high vaulted ceiling, solid wood flooring, a wood burning stove, fitted storage, door leading to the roof terrace.

Bedroom 2 - with fitted storage.

Bedroom 3 - with an airing cupboard.

Bathroom - with a tiled shower cubicle, bath, vanity sink unit, low level WC, heated towel rail.

Outside - The property is attractively set back from the road secluded by established hedges and mature trees and approached via a paved driveway and with an attractive lawned front garden.

At the rear of the property is a truly delightful established garden with a wealth of established trees, plants and shrubs throughout and attractive landscaped ponds creating a relaxing and private area for enjoyment. A large workshop/outbuilding benefits from a 3 Phase electricity supply and beyond this leads to a managed vegetable garden.

Sales Agents Notes - Tenure - Freehold
Council Tax Band - D
Property Type - Semi-Detached House
Property Construction - Brick and external rendered walls, clay tiled roof and partial asphalt roof
Number & Types of Room - Please refer to the floorplan
Square Footage - 2088.20
Parking - 4/5 spaces on driveway
Heating sources - Oil fired central heating and wood burner.

For more information on this property, please refer to the Material Information Brochure on our website.

Stamp Duty thresholds have and are changing imminently. Please familiarise yourself with the current thresholds and timescales before moving forward with any transactions. More details can be found at: https://www.gov.uk/stamp-duty-land-tax.

Cheffins

Cheffins

2 Black Bear Court
Newmarket
Suffolk
CB8 9AF

+44 (0)1638 663228

Reference: 33145067

Request a viewing for this property

Simply fill out the form below or alternatively call us on 020 7839 0888

* Mandatory fields