1 Bedroom Semi-Detached
£450,000
Cranmore, Isle of Wight

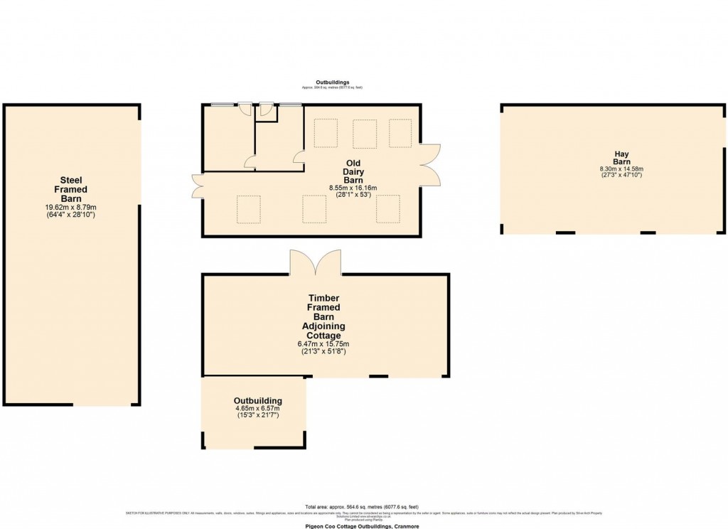
Floorplans For Cranmore, Isle of Wight Floorplans For Cranmore, Isle of Wight
EPC Graph for Cranmore, Isle of Wight}

Description


A truly unique opportunity to acquire a semi-detached cottage with a collection of barns, located in one of the most sought after parts of The Island, a short walk from Newtown Nature Reserve.

Available to the open market is this wonderful former farmstead positioned in a wonderful part of the Island within the privately owned Hamstead Estate, which is around 10 minutes drive to the Historic Harbourside town of Yarmouth.

The property extends to around 0.747 acres, which consists of a cluster of good sized barns/buildings together with a characterful period cottage offering a new owner a significant opportunity to develop this plot further and create the ideal rural property.

Pigeon Coo Farmhouse comprises a two storey, one-bedroom semi-detached house with a large south facing sitting room/diner on the ground floor with a substantial adjoining timber framed barn with considerable charm. On the north side of the house is a large lawn and further barn. There is a fireplace in the sitting room and a bathroom with WC and wash hand basin on the first floor. The cottage would benefit from some modernisation and offers huge potential - it does benefit from double glazing.

LAND The plot is level and extends to approximately 0.747 acre. There is the option to acquire more land by separate negotiation. Additional land would be adjacent woodland or permanent pasture located within 50m of the property.

PLANNING A pre-application meeting recently look place with the Isle of Wight Planning Department. Please contact the Spence Willard Yarmouth office for a copy of this report.

BARNS This is a former dairy farm with the original buildings in situ. There is an open fronted hay barn, brick built old dairy barn with inner rooms. A large timber framed barn of great character adjoins the side door to the cottage and doubles up as a garage to the house. A large barn is located in the back garden just inside the western boundary which has a concrete floor.

TENURE Freehold. Access to the property is over the Hamstead Drive, the property has a right of way. Hamstead Drive itself delivers a stunning approach to the cottage which passes over a stone bridge and straddles a title section of Newtown Nature Reserve - packed full of wildlife. There is close by access to miles of footpaths as well as the Isle of Wight Coastal Footpath.

SERVICES Private drainage. Power and water are connected to the property.

COUNCIL TAX Band B

EPC F

VIEWINGS All viewings will be strictly by prior arrangement with the sole selling agents: Spence Willard.

Important Notice
1. Particulars: These particulars are not an offer or contract, nor part of one. You should not rely on statements by Spence Willard in the particulars or by word of mouth or in writing ("information") as being factually accurate about the property, its condition or its value. Neither Spence Willard nor any joint agent has any authority to make any representations about the property, and accordingly any information given is entirely without responsibility on the part of the agents, seller(s) or lessor(s). 2. Photos etc: The photographs show only certain parts of the property as they appeared at the time they were taken. Areas, measurements and distances given are approximate only. 3. Regulations etc: Any reference to alterations to, or use of, any part of the property does not mean that any necessary planning, building regulations or other consent has been obtained. A buyer or lessee must find out by inspection or in other ways that these matters have been properly dealt with and that all information is correct. 4. VAT: The VAT position relating to the property may change without notice.

Spence Willard

Spence Willard

The Square
Yarmouth
Isle of Wight
PO41 0NP

+44 (0)1983 761005

Reference: 33132009

Request a viewing for this property

Simply fill out the form below or alternatively call us on 020 7839 0888

* Mandatory fields