Land
£200,000
Wyvern Road, Taunton

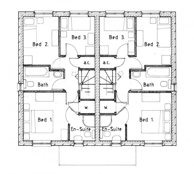
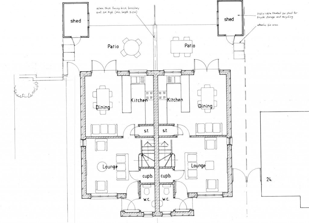
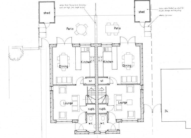
Floorplans For Wyvern Road, Taunton Floorplans For Wyvern Road, Taunton

Description


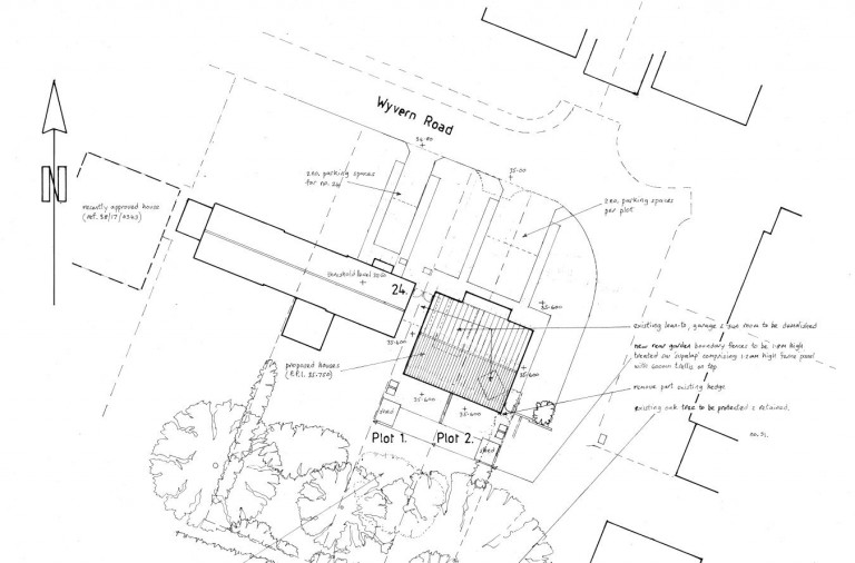
An exciting development opportunity with planning permission granted for the erection of two semi detached houses with gardens and off road parking.

Situation - Situated in a favoured location close to the town centre within easy walking distance of local amenities and close to popular schools. Taunton has a very good town centre for shopping, restaurants, bars and cafes as well as a number of retail parks including Hankridge Farm Park to the east of the town. Taunton is home to Somerset County Cricket Club and is also known for it's popular race course to the north of the town centre. Vivary Park is a 19 acre park at the heart of the town with tennis courts and 18 hole golf course. There is also the Brewhouse Theatre, Odeon cinema and museum.. Taunton is accessed from the M5 at junction 25 and the railway station provides a regular service to Bristol Temple Meads and London Paddington.

Description - A detailed planning consent has been granted for the erection of two semi-detached houses situated in a quiet cul-de-sac within one of Taunton's most popular locations. Each property will have an entrance hall with cloakroom, lounge and open plan kitchen/dining room. On the first floor there will be three bedrooms, the master bedroom having an ensuite shower, and a family bathroom suite.

The properties will have two off road parking spaces and gardens to the rear and side.

The plot is level, has it's own access and has been cleared between the garage and the host property.

Services - The property has access to all main services, including gas. Interested parties are advised to make their own enquiries in regard to services prior to exchange of contract.

Viewings - The site can be viewed during daylight hours.

Directional Notes - From Taunton proceed out of town into Trull road and just opposite Queens College turn left into Queens Drive. Follow the road ot the bottom and proceed over the bridge and bear right and follow the road around two left turnings and bear right into Wyvern Road and the site can be identified on the right hand side just before the entrance to the care home.

Planning - Further details can be found on the Taunton Deane council website under planning reference 38/18/0083

Method Of Sale - The building plots at Wyvern Road are for sale by Informal Tender by Friday 28th June at 12 noon, unless sold prior.

Stags

Stags

5 Hammet Street
Taunton
Somerset
TA1 1RZ

+44 (0)1823 256625

Reference: 33098684

Request a viewing for this property

Simply fill out the form below or alternatively call us on 020 7839 0888

* Mandatory fields