3 Bedroom Plot
£595,000
Gurnard, Isle of Wight

Floorplans For Gurnard, Isle of Wight Floorplans For Gurnard, Isle of Wight Floorplans For Gurnard, Isle of Wight

Description


A rare opportunity to acquire a stunning 3.2 acre site with planning consent for a contemporary house with breath-taking views over Thorness Bay and across The Solent

Oakwood Plot - Occupying a secluded, rural setting close to the sought after the village of Gurnard, this building plot benefits from incredible views across The Solent to the Hampshire Coast. It is offered with approved planning permission for a stunning 2 storey contemporary home extending to around 350 square meters designed to make the most of the magnificent outlook. Approached over a shared track, the site extends to just over 3 acres and largely comprises mature woodland with some wonderful mature trees with bluebells and other wild flowers. A path leads through mature woodland to the south of the plot where there is a Scandi style cabin which provides an idyllic retreat from which the sea views can also be enjoyed.

Thorness Bay is a 10 minute walk away. In addition to the local shops, a sailing club, cafes and 2 pubs in Gurnard, the plot is only a short drive from the bustling town of Cowes with its international sailing scene and high-speed ferry links to Southampton, enabling easy access to the Southampton Airport and London.

APPROVED PLANNING
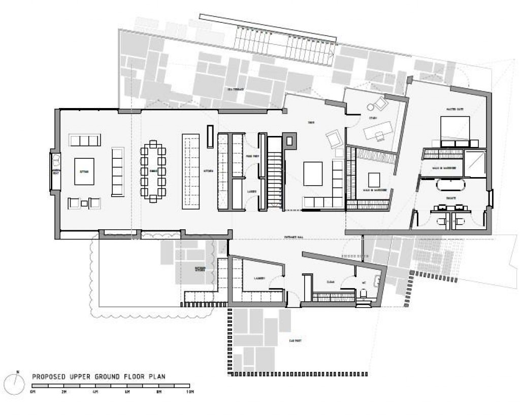
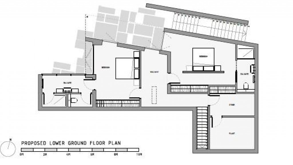
Planning consent reference 21/00315/FUL was granted on 14th June 2021. Once built, this exceptional new home will provide really spacious and high quality accommodation, designed to have sea views and terrace access from all living spaces and bedrooms which are generously proportioned. The approved design comprises, as illustrated on the floor plans provides:

(Approximate measurements):

UPPER GROUND FLOOR
Entrance Hall
Cloakroom
Open-plan Living/Kitchen/Dining Room (10.2M x 7.2 M)
Adjacent Larder and Food prep area.
Snug 6.5M x 3.6M
Study 3.5M x 3.1M max
Laundry room
Principal Bedroom Suite with the bedroom 5.0M x 3.5M in addition to which are 2 walk in wardrobes and large bathroom en-suite.

LOWER GROUND FLOOR
Hallway 4.6M x 2.1M
Bedroom 2 5.3M x 4.0M with an en-suite shower room.
Bedroom 3 5.0M x 3.5M with en-suite shower room.
Store 3.6M x 2.3M
Plant room 3.6M x 2.6M

There is a car port situated adjacent to the house as well as an outdoor kitchen and large terrace adjacent on both levels to take in the views. The planning consent also includes a separate double carport, storeroom and home office with a WC.
Material commencement had been made to the scheme with the installation of a new drainage system.

THE CABIN
Approximately 6m x 6m, of solid timber construction and recently refurbished to form an open plan living room with kitchenette, a double bedroom and shower room. The cabin is served by mains electric, water and a new drainage system. Sea views can be enjoyed from this delightful wooded setting.

POSTCODE
PO31 8NE

TENURE
Freehold. Right of way over lane, paying fair proportion of maintenance costs.

SERVICES
Mains power and water. New private drainage system. Private well.

DIRECTIONS
Heading out of Gurnard on Rew Street, take the first lane on the right after Sunnycott Caravan Park, signed Allwinds. Proceed for approximately 350m, passing Allwinds on the left and you arrive at Oakwood.

VIEWINGS
All viewings will be strictly by prior arrangement with the sole selling agents, Spence Willard.

Important Notice

1. Particulars: These particulars are not an offer or contract, nor part of one. You should not rely on statements by Spence Willard in the particulars or by word of mouth or in writing ("information") as being factually accurate about the property, its condition or its value. Neither Spence Willard nor any joint agent has any authority to make any representations about the property, and accordingly any information given is entirely without responsibility on the part of the agents, seller(s) or lessor(s). 2. Photos etc: The photographs show only certain parts of the property as they appeared at the time they were taken. Areas, measurements and distances given are approximate only. 3. Regulations etc: Any reference to alterations to, or use of, any part of the property does not mean that any necessary planning, building regulations or other consent has been obtained. A buyer or lessee must find out by inspection or in other ways that these matters have been properly dealt with and that all information is correct. 4. VAT: The VAT position relating to the property may change without notice.

Spence Willard

Spence Willard

Pimento House
Number One The Parade
Cowes
Isle of Wight
PO31 7QL

+44 (0)1983 200880

Reference: 33032934

Request a viewing for this property

Simply fill out the form below or alternatively call us on 020 7839 0888

* Mandatory fields