4 Bedroom Detached
£750,000
Withy Lane, Hemyock

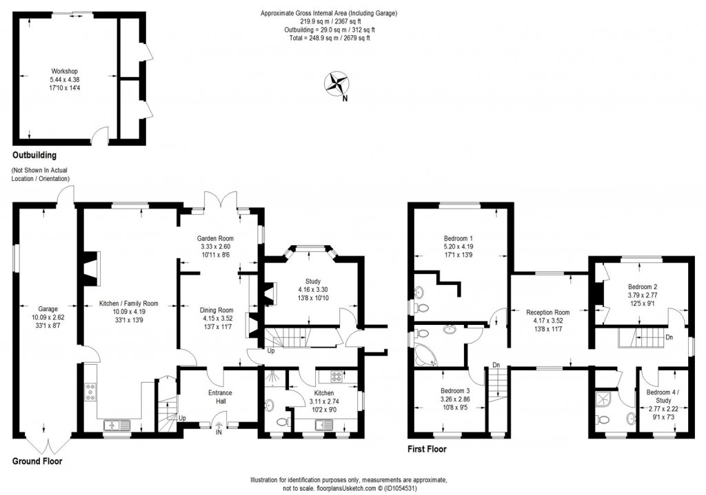
Floorplans For Withy Lane, Hemyock Floorplans For Withy Lane, Hemyock
EPC Graph for Withy Lane, Hemyock

Description


A well presented detached property, ideal for multi generation living, with far reaching views. 4 Bedrooms, 4 reception rooms. 2 kitchens, family bathroom and 2 shower rooms, garage, workshop, established gardens. EPC D. Freehold. Council Tax F.

Situation - Located on the edge of Hemyock with views across the Blackdown Hills, a designated Area of Outstanding Natural Beauty. Hemyock provides a good range of local services including a health centre, shop, Post Office and general stores, primary school, nearby secondary school (Uffculme), Churches and a public house. Approximately 15 minutes drive is the larger market town of Wellington with M5 junction and a further extensive range of facilities, with the nearest railway link at Tiverton Parkway. The County Town of Taunton provides further mainline railway link and an extensive range of shopping and educational facilities. The market towns of Cullompton and Honiton are both within 20 minutes drive.

Description - Syrona is a well appointed family home, ideal for multi generation living, situated on the outskirts of Hemyock with far reaching views. The accommodation in brief comprises of four bedrooms, four reception rooms and two kitchens. Outside are established gardens a workshop, garage and ample parking.

Accommodation - Front door to spacious entrance hall with stairs to first floor and opening into dining room with feature fireplace and opening into the garden room enjoying views over the rear garden and beyond. The kitchen is fitted with a range of modern wall and base units, double stainless steel sink unit, integrated double oven with extractor over and space for dishwasher. The kitchen opens out into the family room with brick fireplace with inset wood burning stove and window overlooking the rear garden. Accessed from the dining room, an inner hallway with secondary staircase provides access to the second kitchen with door to wet room and there is a separate study with feature bay window.

On the first floor there are four bedrooms with the master benefiting from an en suite WC. There is a family bathroom and a separate shower room along with a further reception room currently used as a snug with rural views.

Outside - To the front, wooden gates give access to the drive with parking for multiple vehicles and access to the garage. The rear garden enjoys far reaching views and is mainly laid to lawn with various patio areas, mature shrubs and flowerbeds. There is a useful workshop/games room at the end of the garden which is insulated with power and light and offers further potential, subject to necessary consents, with further adjoining wood store and storage.

Viewings - Strictly by appointment with the vendor's selling agents, Stags, Wellington Office.

Services - Mains electic, private water and drainage, oil fired heating, solar panels.

Directions - From the M5, Junction 26 take the exit signposted Wellington. At the next roundabout take the 1st exit (A38) towards Tiverton. After approx 1 mile take the left hand turn signposted Ford Street and Hemyock. Continue through Ford Street and up to the top of the hill. At the cross roads turn right and carry on for approx 1 mile turning left just before the bend, signposted Hemyock, and travel down into the village. Just as you enter the village, towards the bottom of the hill, turn right onto Withy Lane signposted Culmstock/Culmpyne and continue along where the property will be found on the left hand side.

Stags

Stags

7 High Street
Wellington
Somerset
TA21 8QT

+44 (0)1823 662822

Reference: 32930167

Request a viewing for this property

Simply fill out the form below or alternatively call us on 020 7839 0888

* Mandatory fields