4 Bedroom Detached
£400,000
Langtree

Floorplans For Langtree Floorplans For Langtree
EPC Graph for Langtree

Description


A unique rural four bedroom barn conversion with gardens and additional land available (AOC restricted) EPC Band G.

Situation - The property is located on the outskirts of the village of Langtree, in a rural location with few near neighbours and only two miles away from the nearest primary school, church and village hall with the nearest pub at Stibb Cross. The nearby town of Great Torrington has an excellent range of amenities for its size including a bank, butchers, bakeries, Post Office, green grocers, public houses, petrol station, supermarkets and small M&S food store. There is also the renowned Plough Arts Centre, which combines theatre and cinema with an art gallery, primary and secondary schools and a 9-hole golf course. Numerous nearby tourist attractions include RHS Rosemoor, the Dartington Crystal factory and the Tarka Trail, providing many miles of perfect walking and cycling along the old railway line. The port and market town of Bideford has a wider range of amenities, supermarkets and schooling for all ages again (public and private). This rural property is well situated to travel to a mixture of leisure pursuits within 15 miles including the beaches at Westward Ho! and Bucks Mills and the South West Coast footpath taking in the stunning vistas of the rugged North Devon Coastline. Further afield is Dartmoor National Park affording excellent long walks and Barnstaple town with transport connections via rail at the train station to Tiverton Parkway and Exeter St Davids which connects to the rest of the rail network and A361 link road to the motorway. For those commuting or visiting, Bude and Okehampton can be reached by car in around 40 minutes, Exeter 1 hour, (M5) the motorway and South Devon coastline (Torquay) in approx 1.5 hours.

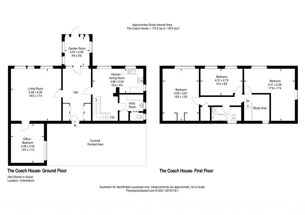
Description - The Coach House is a highly individual period barn conversion with approximately 0.8 acres of garden and land, situated in a rural location, and is subject to an Agricultural Occupancy Condition (AOC). The property is understood to have been a former coach house to the former farm estate and was subsequently converted into a dwelling in the 1960's.

Accommodation - The accommodation comprises; entrance hall with storage cupboards that leads to the garden room with a door out to an enclosed courtyard and doors to the living room and kitchen/diner. The light living room has white painted wood flooring from here a door leads to the study/bedroom. The kitchen/dining room has space for a farmhouse table and chairs with an adjoining utility room and stairs rising to the first floor.
On the first floor, the landing has a Velux window over a small study/reading area and doors lead to the three double bedrooms, bathroom and further storage cupboards.

Outside to the front is a private enclosed decking and garden area, ideal for outdoor dining, entertaining etc. To the rear via the garden room is a well established and secluded garden, a lovely private spot to enjoy the peace and quiet which this home has in abundance.

The layout of the accommodation and approximate dimensions are more clearly shown on the accompanying floorplan and the boundary can be found on the accompanying landplan.

Additional Land - Adjacent to the property is an orchard with a variety of fruit trees and a level paddock, This parcel of land is available by separate negotiation with a Guide Price of: £50,000.

Services & Additional Information - Mains electricity and water. Private drainage.
According to Ofcom, Standard broadband is available at the property and mobile signal is likely with EE, Vodaphone, O2 and Three. For further information please see the Ofcom website.

The Agricultural Occupancy Condition (AOC) / agricultural tie, currently means that full time occupation of the dwelling shall be limited to a person solely, mainly employed or last employed, in the locality, within agriculture as defined under section 290(1) of the Town and Country Planning Act 1971 or in forestry (including any dependents of such person residing with him/her) or a widow or widower of such a person.

Viewings - Strictly by confirmed prior appointment please, through the sole selling agents, Stags on 01237 425 030.

Directions - Postcode: EX38 8np (not to be relied upon).
What3words///overruns.submits.daffodils

Stags

Stags

4 The Quay
Bideford
Devon
EX39 2HW

+44 (0)1237 425030

Reference: 32653021

Request a viewing for this property

Simply fill out the form below or alternatively call us on 020 7839 0888

* Mandatory fields