2 Bedroom Land
£125,000
Ashbrittle, Wellington

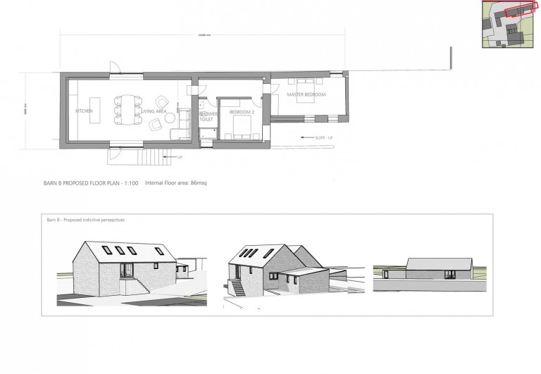
Floorplans For Ashbrittle, Wellington Floorplans For Ashbrittle, Wellington
EPC Graph for Ashbrittle, Wellington

Description


A traditional stone barn for conversion situated within a tranquil rural location. Planning consent to create a residential dwelling with 2 bedrooms, an open plan living, dining and kitchen area and a shower room. Parking and garden. FREEHOLD.

Situation - The barn is part of Normans Farm and is situated in a fine position, surrounded by open countryside overlooking an attractive valley near to the Somerset / Mid Devon border.

The village of Ashbrittle is about 1.7 miles from the farm and the larger village of Appley (3.2 miles) has a primary school, village store and The Globe Inn.

The town of Wiveliscombe is within 5 miles and provides schooling and a range of shops, pubs and restaurants.

Wellington is approximately 8.5 miles away and offers a Waitrose supermarket and access to the M5 motorway at Junction 26 whilst the county town of Taunton is 15 miles away and has rail services to London Paddington.

The Blackdown, Brendon and Quantock Hills as well as Exmoor National Park are all within a short distance and provide spectacular scenery and excellent walking, riding and fishing whilst the rugged Somerset and North Devon coastline is also within easy reach.

Description - Higher Barn (LOT 2B) is a traditional stone barn at Normans Farm which has planning consent for conversion to a residential dwelling.

The main part of the existing barn measures approximately 9.56m x 5.04m and the attached shippen measures 5.94m x 3.08m and planning consent has been approved to create a single-storey dwelling with two bedrooms, a shower room and open plan kitchen, dining and living space.

Outside there is provision for a parking space and a small garden within the large yard to the rear.

Please note that the western section of the building within this lot will need to be removed to provide access to the parking area. This is shown on the proposed plans submitted with the planning application.

Additional Lots Available - LOT 2A: A modern and traditional barn for conversion with 0.47 acres.
LOT 3: A modern barn for conversion with 1.97 acres.
LOT 5: Pasture land and woodland. 25.55 acres.

Services - LOT 2B: There are no services currently connected.

Access - LOT 2B will be provided with a right of access over the accessway which is marked with brown hatching on the lot plan with these sales particulars.

Tenure - The farm is owned freehold. Vacant possession will be available from the completion date.

Planning - Planning consent was granted to convert the building to a dwelling under reference 01/23/0006/CQ. The approval date is 18th September 2023.

Local Authority - Somerset Council (Somerset West and Taunton).

Plans & Boundary Fences - A plan, which is not to scale and is not to be relied upon, is attached to these particulars. Purchasers must satisfy themselves by inspection or otherwise as to its accuracy.

Wayleaves & Rights Of Way - The property is sold subject to and with the benefit of any wayleave agreements and any public or private rights of way or bridleways etc.

Viewing - Strictly by prior appointment with Stags. Call: 01392 680059 or email: farms@stags.co.uk to arrange an appointment.

Directions - From Wellington head towards Tiverton on the A38 and after approximately 3.5 miles turn right signposted to Greenham and Appley.

Continue on this road, passing through the village of Greenham and at the next junction (Appley Cross) turn right towards Appley. After 430 yards, just before reaching The Globe Inn turn left towards Stawley and continue for just under one mile and turn left towards Ashbrittle.

Continue for about 500 yards, cross the stone bridge and turn right towards Clayhanger. Follow this road for about 0.75 miles and at Waldron's Cross turn right towards Waterrow. After 0.25 miles, as the road bears sharp right the entrance lane to LOT 2B will be found straight ahead,

What3words - Reference/// hope.additives.rural

Warning - Farms and land can be dangerous places. Please take care when viewing the property, particularly in the vicinity of farm buildings and livestock.

Disclaimer - These particulars are a guide only and should not be relied upon for any purpose.

Stags

Stags

21 Southernhay West
Exeter
Devon
EX1 1PR

+44 (0)1392 255202

Reference: 32563921

Request a viewing for this property

Simply fill out the form below or alternatively call us on 020 7839 0888

* Mandatory fields