5 Bedroom Semi-Detached
£625,000
Bembridge, Isle of Wight

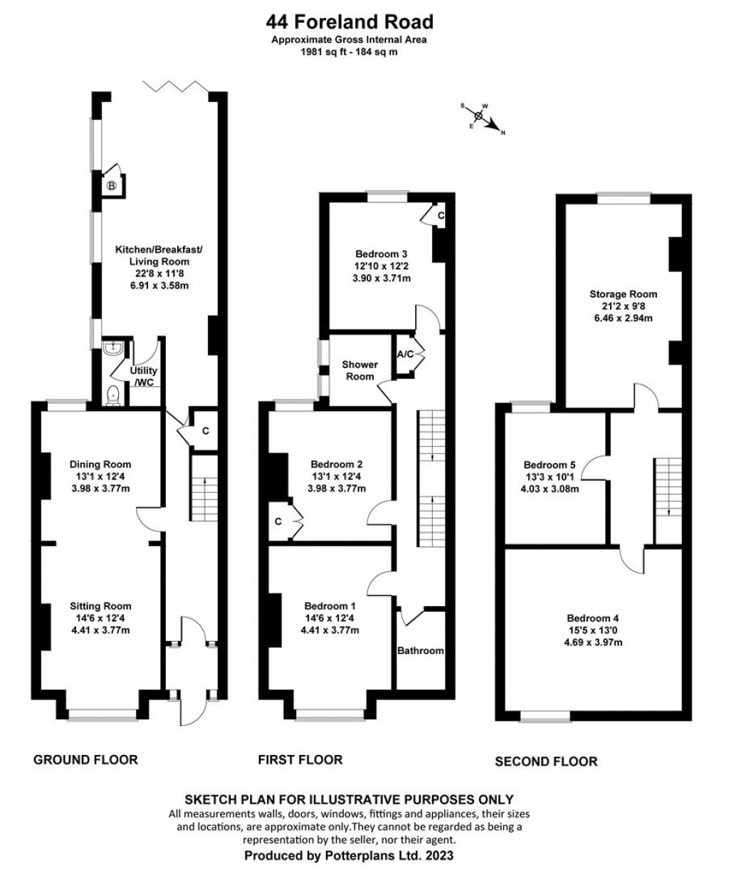
Floorplans For Bembridge, Isle of Wight
EPC Graph for Bembridge, Isle of Wight

Description


Offering a generous range of accommodation, large garden and the benefit of a tastefully recently completed renovation, this period property is situated in the heart of Bembridge village.

44 Foreland Road is arranged over three floors and comprises a wealth of well-proportioned accommodation filled with character and extending to five bedrooms with two bathrooms. Superb reception space and includes an open plan kitchen, dining and living area connected to the garden as well as a large and light separate sitting room and dining room. The gardens extend in a south westerly aspect some 150 feet and are landscaped with a patio for outdoor dining and entertaining. These properties are particularly popular among families and also for use as a holiday home with convenient access to all that Bembridge has to offer.

Situated moments from the village centre Bembridge boasts a good range of shops including a butcher, florist, bakery, refillery, delicatessen and fishmonger in addition to cafes and restaurants. Bembridge Harbour has extensive mooring facilities and two sailing clubs, whilst there are also numerous beaches. The FastCat ferry providing high speed passenger links to Portsmouth, is located in Ryde approximately 7 miles away.

Accommodation
Ground Floor

Entrance
Storm porch over original timber door with stained glass inset with windows to the side and above.

Porch
Plenty of space for hanging coats and lantern over.

Hallway
With attractive feature tiled floor running the length of the hallway, high ceilings, picture and dado rails with deep skirting boards and vintage style radiator.

Sitting Room/Dining Room
An impressive dual aspect room with fireplace housing iron and tiled surround and stone mantle. Bay window overlooking the front aspect and window in the dining room overlooking the garden.

Kitchen/Living Area
Newly fitted, the kitchen comprises particularly attractive range of navy blue fronted under counter storage cupboards and tall larder pull out, with white wall cupboard storage and also incorporating twin composite sinks with mixer tap over, Neff five ring induction hob with extractor over, mid level oven, grill and microwave. There is also an integrated wine cooler and Neff dishwasher. The oak worktops also provide a breakfast bar seating area and an island in the middle. Space and plumbing for a fridge and freezer. At the end of this great family space is a large area with space for a dining table as is currently arranged a living area with TV points, tall radiator and bi-folding doors to the garden.

Utility Room/W.C.
A useful space with shelving and worktop over, space and plumbing for a washing machine and tumble dryer, separate W.C. and pedestal wash basin.

First floor
Carpeted stairs to a galleried landing with two airing cupboards, one housing immersion water tank and linen shelving. The first floor comprises three particularly generous double bedrooms with period features, including deep skirting, picture rails and at the front a large picture window, whilst the room at the rear enjoys garden views and there is also a built in wardrobes in two of the rooms.

Family Bathroom
Incorporating a panelled bath, vanity unit wash basin, heated towel rail, W.C.

Shower Room
Newly fitted family shower room with tiled floor and walls, heated towel rail, shower, pedestal wash basin, bidet and W.C.

Second Floor
With galleried landing and Velux window providing plenty of natural light. There are two large double bedrooms which are newly decorated with carpeted floors and a further loft store or office space at the rear.

Outside
The house is set back from the road behind a gravelled front garden with iron rail pedestrian gates and side access to rear gardens which extend to 150 ft. The garden is quite a special place bordered by mature hedging, herbaceous shrubs and specimen trees on one side but is largely laid to lawn with various fruit trees and two garden sheds. Immediately outside of the bi-folding doors is a landscaped patio with planted borders and southerly aspect which is perfect for outdoor entertaining.

Services
Mains electricity, drainage and water. Heating is provided by a newly replaced gas fired boiler located in the kitchen with remote operated thermostat and delivered via radiators with a separate underfloor heating system in the kitchen/living area.

EPC Rating
D

Tenure
The property is offered Freehold

Council Tax
Band E

Postcode
PO35 5XW

Viewings
All viewings will be strictly by prior arrangement with the sole selling agents, Spence Willard.

Important Notice
1.Particulars: These particulars are not an offer or contract, nor part of one. You should not rely on statements by Spence Willard in the particulars or by word of mouth or in writing ("information") as being factually accurate about the property, its condition or its value. Neither Spence Willard nor any joint agent has any authority to make any representations about the property, and accordingly any information given is entirely without responsibility on the part of the agents, seller(s) or lessor(s). 2. Photos etc: The photographs show only certain parts of the property as they appeared at the time they were taken. Areas, measurements and distances given are approximate only. 3. Regulations etc: Any reference to alterations to, or use of, any part of the property does not mean that any necessary planning, building regulations or other consent has been obtained. A buyer or lessee must find out by inspection or in other ways that these matters have been properly dealt with and that all information is correct. 4. VAT: The VAT position relating to the property may change without notice.

Spence Willard

Spence Willard

Sherbourne Street
Bembridge
Isle of Wight
PO35 5SB

+44 (0)1983 873000

Reference: 32351367

Request a viewing for this property

Simply fill out the form below or alternatively call us on 020 7839 0888

* Mandatory fields