Plot
£200,000
Land Adjacent To Killick Cottage, Salwayash, Bridport

Description


GUIDE RANGE £200,000 - £225,000. Good-sized building plot with outline permission for a substantial detached house.

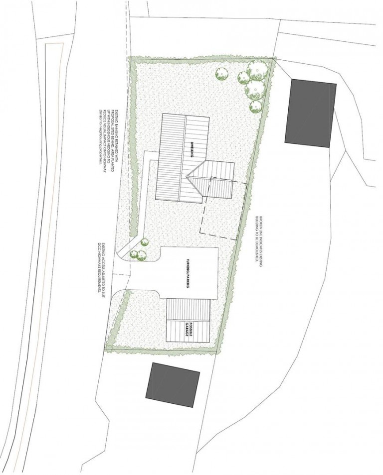
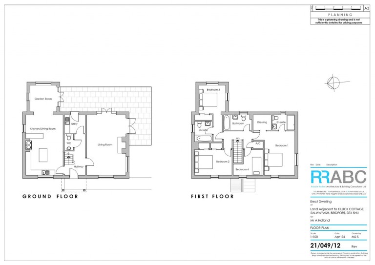
The Plot - The sale of Thatcher's Patch represents an unusual opportunity to purchase a plot that has planning permission for a substantial detached house with lovely views over the surrounding countryside towards Bridport town, Shipton Gorge and Colmers Hill.

The plot lies at the South end of the village, approximately 0.16 acre adjoining open farmland. On the South side of the plot there is a vehicular entrance and to the centre there is currently a curved corrugated iron outbuilding. Electricity, water and sewerage services can be found in the adjoining road. The plot will be subject to a limited number of convenants to follow.

The planning permission is number is P/RES/2024/02292.

Situation - Salwayash is a favoured village which provides a village school, church and village hall. Bridport is situated about 2.5 miles away and is a busy market town and popular holiday area. High Street markets are held twice weekly. The town provides a comprehensive range of shopping and professional facilities, primary and secondary schools, recreational and social amenities. The pretty harbour at West Bay, with lovely beaches is close by and the area provides the opportunity of enjoying the Jurassic coast as well as the surrounding countryside which is designated as an Area of Outstanding Natural Beauty.

Symonds and Sampson

Symonds & Sampson

23 South Street
Bridport
Dorset
DT6 3NU

+44 (0)1308 422092

Reference: 32255081

Request a viewing for this property

Simply fill out the form below or alternatively call us on 020 7839 0888

* Mandatory fields