4 Bedroom Detached
£1,350 PCM
Monarch Close, Haverhill

Floorplans For Monarch Close, Haverhill Floorplans For Monarch Close, Haverhill
EPC Graph for Monarch Close, Haverhill

Description


A superb four bedroom detached house on the Cambridge side of the town with a double garage. The property benefits from two reception rooms, downstairs wc, and en suite. EPC Rating D. Council Tax Band D. Available 16th December 2022.

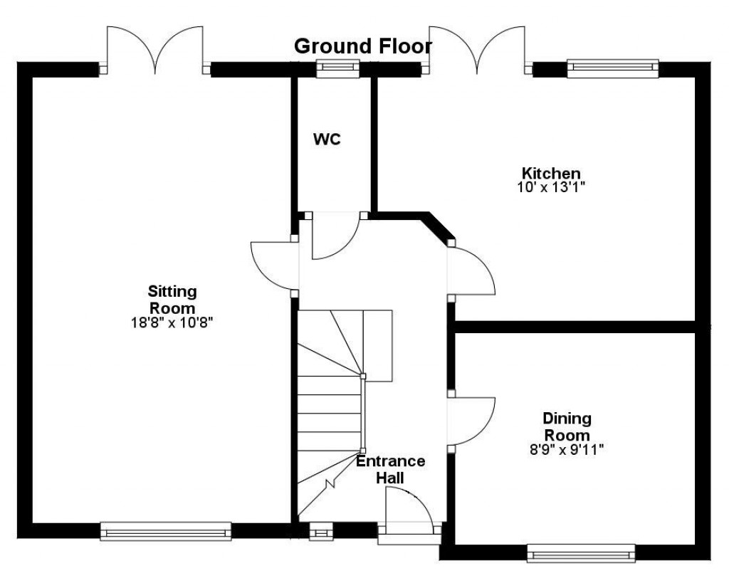
Ground Floor -

Entrance Hall - Under stairs storage cupboard, window to front, stairs to first floor, doors to:

Dining Room - 2.67m x 3.02m (8'9" x 9'10") - Window to front

Wc - Fitted with two piece suite comprising low level w.c., wash hand basin, obscure window to rear

Kitchen - 3.05m x 3.99m max (10'0" x 13'1" max) - Fitted with wall and base units with work top over, 1 1/2 bowl sink with mixer tap, integrated double oven with gas hob and extractor hood, space for fridge freezer, plumbing and space for washing machine and dishwasher, window to rear, patio door to garden

Lounge - 5.69m x 3.25m (18'8" x 10'7") - Window to front, patio doors to garden

First Floor -

Landing - Airing cupboard, doors to:

Bedroom 1 - 3.07m x 2.54m (10'0" x 8'3") - Window to rear, door to:

En Suite Shower Room - Shower enclosure, wc and wash hand basin, window to rear

Bedroom 2 - 2.79m x 3.33m (9'1" x 10'11") - Window to front

Bedroom 3 - 2.13m x 3.05m (6'11" x 10'0") - Window to front

Bedroom 4 - 2.77m x 2.16m (9'1" x 7'1") - Window to rear

Bathroom - Suite comprising panelled bath, wc and wash hand basin, window to rear

Garden - Rear garden mainly laid to lawn with patio area, shed and access do to garage

Double Garage - Two up and over doors to front and pedestrian access from garden

Tenancy Information

Reference: 31950526

Request a viewing for this property

Simply fill out the form below or alternatively call us on 020 7839 0888

* Mandatory fields