£250,000
Between Nettlestead & Somersham, Nr Ipswich, Suffolk

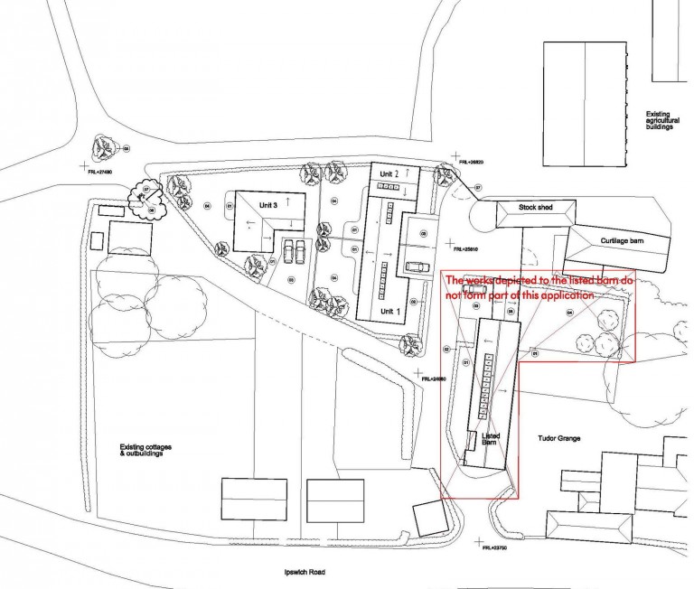
Floorplans For Between Nettlestead & Somersham, Nr Ipswich, Suffolk Floorplans For Between Nettlestead & Somersham, Nr Ipswich, Suffolk

Description


Planning permission has been granted for the erection of three new dwellings comprising a link-detached bungalow, a link-detached house and a detached bungalow following the demolition of an existing building on a site that extends to approximately 0.27 acres (0.11 hectares) in all.  

Location
The site forms part of Watering Farm which is located in the Parish of Nettlestead, but just a short distance to the north-west of the popular village of Somersham.  Somersham benefits from a village pub, The Duke of Marlborough, and other facilities including a hairdresser, primary school, garage, village hall, shop and children's play area, as well as St Mary's Church and Somersham Baptist Chapel. 

The village is surrounded by farmland but has easy access to the larger villages of Bramford and Claydon, both offering further everyday shopping and recreational facilities as well as primary and secondary schools. There is easy access to the A14 which offers access in an easterly direction to the A12, Ipswich and Felixstowe and in a westerly direction to Bury St Edmunds, Cambridge and on to the Midlands.   The county town of Ipswich which is just 2 miles to the east, offers a wide range of facilities including mainline railway link to London's Liverpool Street.

Directions
Proceeding in a northerly direction on the A14 beyond Ipswich, take Junction 52 onto the B1113 where signposted to Bramford and Great Blakenham.  At the roundabout take the second left onto the B1113 (Bramford Road).  After a approximately half a mile take the second turning on your right onto Pound Lane.  Continue along Pound Lane, turning right at the next junction onto Somersham Road.  Continue through the village of Somersham where the site will be found on the right hand side.
For those using the What3Words app: ///brilliant.professed.kitchens

Description

Planning Permission was granted by Mid Suffolk District Council on 15th January 2021 for the erection of three new dwellings on site - Reference DC/20/04004.    Extracts of the consented plans are included within these particulars.  

The consented scheme that accompanied the application provides for three dwellings to be built on site following the demolition of an existing former agricultural storage building.  The layout comprises a link detached bungalow, a link detached chalet style house and a detached bungalow, all with gardens and car parking facilities.  The vendors also secured a separate planning permission for the conversion of the adjacent barn, which is also available for sale by separate negotiation.

The vendors, in conjunction with their architects HAT Projects, implemented the planning permission before it expired on 14th January 2024. This was achieved by securing permission from the local planning authority to phase the development, with the first phase comprising the installation of the new agricultural access, with the second phase comprising the development itself. A non-material amendment was approved in that regard-reference DC/23/03921.  Mid Suffolk Council have also advised that the CIL liability has not been triggered by these works. Further information is available on request.  

CIL

The planning permission is subject to the local planning authority’s Community Infrastructure Levy (CIL) and a CIL Liability Notice was subsequently issued dated 19th January 2021 confirming that the amount of CIL payable is £47,385.47, although we understand that this is subject to indexation.  Any detailed enquiries relating to CIL should be referred to the local planning authority, Mid Suffolk District Council; Email:  infrastructure@baberghmidsuffolk.gov.uk.  Reference: LN00004440.

 

The Accommodation
A schedule of the indicative accommodation for the consented scheme is as follows:

Unit 1 - 887 sq ft - 81.48 sqm - A link detached two/three bedroom bungalow with garage
Unit 2 - 1,245 sq ft - 115.66 sqm - A link detached four bedroom chalet style house with garage
Unit 3 - 853 sq ft - 79.21 sqm - A detached two bedroom bungalow with garage
TOTAL =    2,985 sq ft - 276.35 sqm

Proposed Terms of Sale

The extent of the site being offered for sale is as per the indicative plans included within these particulars.  A right of way will be granted over the access roadway, which is to be retained by the vendors.    

Prospective purchasers should note that the vendor will include a positive covenant within the sale contract requiring that the development should be in accordance with the planning permission granted and any variation will need to be with the vendor’s prior consent, which is not to be unreasonably withheld.  The vendors will not be obliged to maintain the roadway to any better standard than that for agricultural purposes only, although the purchasers can upgrade the roadway should they so wish.  Moving forward the purchasers will be obliged to contribute a fair proportion towards the maintenance and upkeep of the roadway.

Access to the site will be via the existing roadway, although this will be retained by the vendors.  The vendors will covenant only to use that access for residential and light good vehicles only, with a new access for agricultural vehicles being created to the west.   The vendors will not be obliged to maintain the roadway to any better standard than that for agricultural purposes only.  The purchasers will be obliged to contribute a fair proportion towards the maintenance and upkeep of the roadway.

The vendors will include a covenant/obligation within the sale contract not to use the agricultural buildings at the rear for the housing of any livestock.  The vendors will also include a covenant/obligation requiring that the purchaser, and future purchasers, will not object to any planning application to redevelop the retained barns to the north-east for residential purposes.  

Services  
We anticipate that a purchaser will wish to bring new, independent underground supplies for water, electricity and drainage from the public highway and a suitable easement to undertake these works within the retained land will be granted, subject to any ‘making good’ works to the vendor’s satisfaction.  It will be for the purchaser to satisfy themselves in relation to the provision and capacity of any services required. 

Architects
HAT Projects, Trinity Works, 24 Trinity Street, Colchester, CO1 1JN  Tel: 01206 766585 
Email: blakenhamfarms@hatprojects.com.  For the attention of Hana Loftus.

Local Authority 
Mid Suffolk District Council, Endeavour House, 8 Russell Rd, Ipswich IP1 2BX; Tel: 0345 6066067

Viewing  
Prospective purchasers should note that adjacent to the site is a working arable farm and therefore viewings should be strictly by prior appointment with the selling agents.   

NOTES

1.  Every care has been taken with the preparation of these particulars, but complete accuracy cannot be guaranteed.  If there is any point, which  is of particular importance to you, please obtain professional confirmation. Alternatively, we will be pleased to check the information for you.  These Particulars do not constitute a contract or part of a contract.  All measurements quoted are approximate.  The Fixtures, Fittings & Appliances have not been tested and therefore no guarantee can be given that they are in working order.  Photographs are reproduced for general information and it cannot be inferred that any item shown is included.  No guarantee can be given that any planning permission or listed building consent or building regulations have been applied for or approved. The agents have not been made aware of any covenants or restrictions that may impact the property, unless stated otherwise.  Any site plans used in the particulars are indicative only and buyers should rely on the Land Registry/transfer plan. 

2.  The Money Laundering, Terrorist Financing and Transfer of Funds (Information on the Payer) Regulations 2017 require all Estate Agents to obtain sellers’ and buyers’ identity.

3.  Interested parties should note that the property forms part of a working arable farm, Watering Farm, and the buildings to the rear of the site are still used for the storage of crops.  

4.  Prospective purchasers should note that the Suffolk barn, to the south-east benefits from planning permission for conversion and is being offered for sale separately. 

5.  Prospective purchasers should note that there is a redundant underground fuel storage tank located within the development site. 

May 2024
 

Reference: 316754

Request a viewing for this property

Simply fill out the form below or alternatively call us on 020 7839 0888

* Mandatory fields