3 Bedroom Terraced
£310,000
Whitebrook Terrace, Holcombe Rogus, Wellington

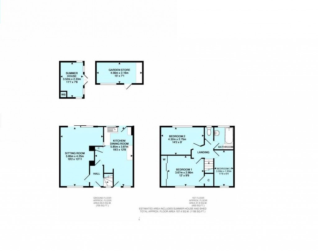
Floorplans For Whitebrook Terrace, Holcombe Rogus, Wellington
EPC Graph for Whitebrook Terrace, Holcombe Rogus, Wellington

Description


A mid terrace property in village location, providing three bedrooms, bathroom, kitchen/diner and sitting room. Established Gardens. EPC E. Council Tax B. Freehold

Situation - Situated on the edge of this sought after village which lies close to the Somerset/Devon border. Holcombe Rogus offers a good range of facilities including a primary school, village hall and church and is close to some lovely canal walks. The market towns of Wellington and Tiverton are equidistant and offer a wide range of shopping and recreational facilities whilst the larger town of Taunton and the Cathedral City of Exeter offer more leading department stores, sixth form colleges and Exeter University. The M5 is readily accessible at junction 27. There are regular rail services to London Paddington from Tiverton Parkway whilst Exeter international airport provides a number of domestic and international flights. The area affords exceptional schooling for all ages with a fine village school which feeds directly into Uffculme School which has an excellent reputation. For independent schools Wellington School and Blundells are within easy reach.

Description - Located on the edge of village this delightful 3 bedroom family home has a wealth of character features and cottage style garden to the rear. The property benefits form oil fired heating and UPVC double glazing. The current owners have updated it over the years to include stripped pine doors and floorboards, sitting room with fireplace and log burner, and open plan kitchen/dining room room which can easily become the social hub of the house. Internal inspection is recommended.

Accommodation - Part glazed front door to entrance hall, with stairs to first floor and doors to all rooms. The sitting room is of good size with doors to garden, fireplace with beam over and inset log burner and stripped floorboards. Kitchen/Dining room is open plan with two distinct areas with space for table and chairs with window overlooking the front. The kitchen itself comprises of a comprehensive range of wall and base units with work surfaces over and inset sink, space for appliances and window and door to rear.

There are 3 bedrooms on the first floor all with exposed floorboards with the master benefitting from wardrobes across the length of one wall, with large picture window to the front with views across rooftops to the open countryside beyond. The second bedroom is a good size with lovely outlook to the rear over the garden and fields beyond. The bathroom comprises of a white suite with bath and shower over, wash hand basin tiled floor and separate WC.

Outside - To the front there is a gate with pathway leading to the front door. The front garden is mainly laid to lawn with flower borders. To the rear there is an area of patio and access to utility shed/store with power and light. A pathway follows the garden, which is mainly laid to lawn, to the summerhouse with wood burning stove. There is a vegetable garden and large shed to the rear of the garden. There are an abundance of flower borders and mature plants and shrubs.

Viewing - Strictly by appointment with the vendor's selling agents, Stags, Wellington Office.

Services - Mains water, electricity and drainage are connected. Oil fired central heating.

Directions - From the centre of Wellington, proceed toward the A38 passing the Beambridge Inn on the left hand side. Continue for approx 1 mile turning right towards Holcombe Rogus. On entering the village, turn left into Frog Lane and continue to the end, turning left proceed along this road leading out of Hlcombe Rogus. Take a right hand turn into Whitebrook Terrace where the property will be found at the end of the cul de sac on the right hand side.

Stags

Stags

7 High Street
Wellington
Somerset
TA21 8QT

+44 (0)1823 662822

Reference: 31404022

Request a viewing for this property

Simply fill out the form below or alternatively call us on 020 7839 0888

* Mandatory fields