2 Bedroom Terraced
£175,000
Canal View, Bathpool, Taunton

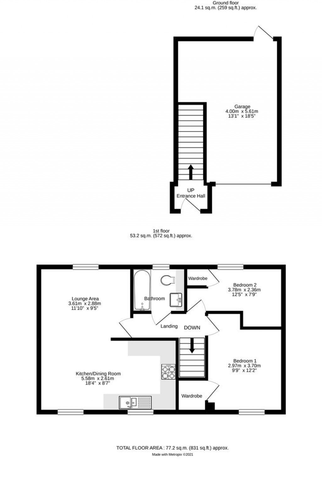
Floorplans For Canal View, Bathpool, Taunton
EPC Graph for Canal View, Bathpool, Taunton

Description


A superbly presented coach house with off road parking, garage and enclosed courtyard. EPC Band C.

Situation - Canal View is found off of Bridgwater Road, in the popular modern Bathpool development and is conveniently situated within walking distance of local amenities including a Co-Op, hairdressers, public house, Primary school and Secondary school. The property is ideally situated for commuters as it is within easy reach of the M5 motorway at Junction 25 with the popular Blackbrook leisure complex, being close by. There are a number of walks and the property is close to open countryside and situated near the canal with a footpath and cycle route. The town centre offers a larger range of shopping, leisure and scholastic facilities and is only a short drive / bus ride away. Taunton itself also has a mainline railway station with direct links to London Paddington in under two hours.

Description - The Coach House situated in Canal View is a superbly presented property built by well known developers Strongvox in 2013 and is situated in a peaceful cul-de-sac position.

Accommodation - The property has accommodation comprising a front door leading to a reception porch with stairs leading to the first floor landing. There is a hallway providing access to the accommodation. The accommodation comprises an open plan living room, which is double aspect. The kitchen / dining room is open plan and is fitted with a range of matching wall and base units including worksurfaces, fitted sink, electric hob with extractor hood oven and built-in oven. There are two bedrooms both with windows and a fitted bathroom suite.

Outside - There is off road parking for two vehicles and a garage with an up and over door. Within the garage there is a further workshop area and a door opening out onto a rear courtyard space, which is enclosed by wooden fencing and is laid to gravel. The garage is larger than average.

Directions - Proceed over the O'Bridge viaduct and at the roundabout take the third exit, sign posted to Monkton Heathfield. Follow the road and proceed straight over the next roundabout. Proceed straight along to the next roundabout and take a right. Go right at the traffic lights and take a left at the roundabout. Take the first left at the next roundabout and then left into Roys place and at the T-junction turn left. Continue down the road taking the first turning left into Canal View, where no 43 can be identified within the development.

Stags

Stags

5 Hammet Street
Taunton
Somerset
TA1 1RZ

+44 (0)1823 256625

Reference: 31047285

Request a viewing for this property

Simply fill out the form below or alternatively call us on 020 7839 0888

* Mandatory fields