3 Bedroom Semi-Detached
£430,000
Frog Street, Bampton, Tiverton

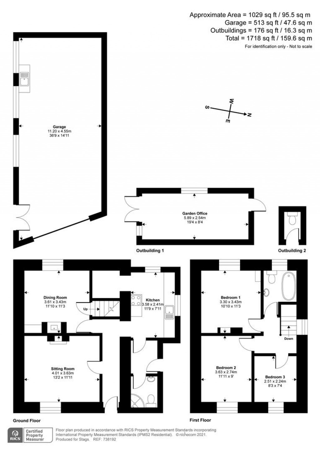
Floorplans For Frog Street, Bampton, Tiverton
EPC Graph for Frog Street, Bampton, Tiverton

Description


A charming period cottage with pretty walled gardens in a convenient position close to the town centre. Close to local amenities. Sought after location. Period property. 3 bedrooms. 2 bathrooms. Walled gardens. Separate home office. Large garage/workshop. EPC Band E.

Situation - The property is situated close to the centre of the picturesque market town of Bampton, which provides a wide range of shopping amenities and services including a primary school, post office, butchers, bakers and award winning restaurants. Dulverton, the Exmoor National Park and Wimbleball Lake are all within a twenty minute drive.

The larger town of Tiverton boasts both private and state schooling, major banks and building societies, and shops catering for a variety of needs. There is access to the M5 at Junction 27, alongside which lies Tiverton Parkway Station.

Description - 5 Frog Street is a charming period cottage believed to date back to 1910. This stone built end terrace property is a short level walk from the town centre and has been upgraded over recent years to provide a well presented family home with the benefit of a garden and large garage/workshop.

Accommodation - On the ground floor, the entrance hall gives access to the sitting room which features an original slate fireplace with inset wood burner. The dining room also benefits from a wood burner, as well as fitted shelving. The kitchen is fitted with a range of cream units with space for appliances and benefits from a large walk-in larder. Also on the ground floor is the rear porch/boot room giving access to the shower room and to the rear garden.

There are three bedrooms on the first floor, with the principal room benefitting from a decorative feature fireplace. Also on the first floor is the family bathroom, fitted with a white suite including a bath with shower over.

Outside - To the side of the property is a spacious garage/workshop, a substantial stone building with concrete floor and services connected. A large wooden door opens onto Frog Street and a side door leads through to the garden room/home office, a useful space with further potential subject to the necessary planning consents.

The property benefits from delightful walled rear gardens, with level lawn surrounded by established tree, flower and shrub borders. There is also a secluded walled seating area, as well as a variety of fruit trees and bushes, herbs and a vegetable plot.

Services - All mains services are connected. Oil fired central heating.

Viewing - Strictly by appointment with the agents please.

Directions - From Tiverton take the A396 north towards the market town of Bampton, passing through the village of Cove. Upon reaching the roundabout at the Exeter Inn, take the second exit signposted Bampton. Continue along this road and through the centre of Bampton. At the junction, turn right onto Castle Street and then immediately left into Frog Street. The property will be found after a short distance on the left hand side.

Stags

Stags

19 Bampton Street
Tiverton
Devon
EX16 6AA

+44 (0)1884 235705

Reference: 30784665

Request a viewing for this property

Simply fill out the form below or alternatively call us on 020 7839 0888

* Mandatory fields