2 Bedroom Flat
£875 PCM
Beckett House, Wallingford Street

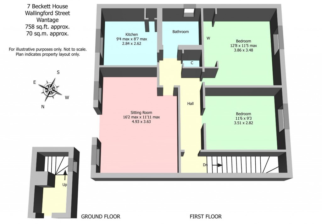
Floorplans For Beckett House, Wallingford Street

Description


Premier two bedroom apartment in a Georgian residence There is a spacious fitted kitchen sitting/dining room master bedroom ,second bedroom , Juliet balcony from living room , off street allocated parking . Council Tax Band C - £ 1792.51 EPC rated D Available Mid June 2021

Wantage has excellent road links to the A34 via the A417, which in turn leads north to Abingdon c.10 miles, Oxford c.17 miles (M40) alternatively south (M4) J14 c.9.4 miles. Didcot/Milton Park is situated to the east with a main line train station to London (Paddington c.45 mins). Also good public transport is available from Wantage to Harwell and Oxford.

A Holding fee of £201.92 will be requested to reserve this property

Douglas & Gribben

Douglas & Simmons

25 & 26 Market Place
Wantage
Oxon
Oxfordshire
OX12 8AE

+44 (0)1235 766222

Reference: 30546595

Request a viewing for this property

Simply fill out the form below or alternatively call us on 020 7839 0888

* Mandatory fields