4 Bedroom Detached House
£699,950
Mill Lane, Westfield, East Sussex

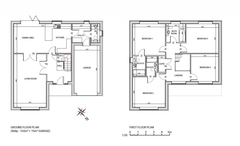
Floorplans For Mill Lane, Westfield, East Sussex

Description


3 Nursery Field is the first house to be launched in this new development of just four properties that are situated in a lovely semi-rural location on the fringe of the village with a lovely view over the adjoining countryside. The houses present attractive brick and tile hung elevations below a tiled roof and enjoy all the latest refinements with high levels of insulation, double glazing and Air-source heating with under floor heating to both the first and second floors. Finished to an exacting standard, the accommodation is arranged around a large reception hall with an oak staircase that rises to the first floor galleried landing. At the heart of the house is a stunning kitchen/breakfast room and integrated appliances, Quartz working surfaces with bi-fold doors onto the patio and garden. Glazed doors connect to the main living room and there is also a separate utility room and an integral garage. The first floor offers four large double bedrooms, two with en-suite shower rooms as well as a separate family bathroom. The properties are ideal for family living and outside enjoy level gardens to both the front and rear with block paved parking.

Note: At the time of preparing these details the ownership and shareholding of the private road and communal gardens has not been finalised but each of the properties will have a share in a residents association that will be formed.

Please note: Certain images used in these particulars have been virtually staged using Artificial Intelligence (AI) to illustrate the property’s potential. These images are for illustrative purposes only and do not represent the current, actual condition or furnishings of the property.

Campbell's

Campbell's

74 High Street
Battle
East Sussex
TN33 0AG

+44 (0)1424 774774

Reference: 30160922

Request a viewing for this property

Simply fill out the form below or alternatively call us on 020 7839 0888

* Mandatory fields