4 Bedroom Detached House
£475,000
Blackford, Wedmore

Floorplans For Blackford, Wedmore
EPC Graph for Blackford, Wedmore}

Description


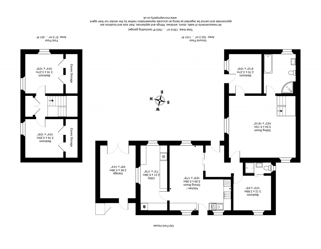
A delightful character property nestled in the heart of the friendly village of Blackford, Old Ford House combines traditional charm with sleek, modern touches creating a beautifully presented and welcoming home with four bedrooms, West-facing courtyard garden, driveway parking and garage.

Converted from a carpenter’s barn dating back to the 1800s, the property has been further extended in more recent years to provide generous living space and four double bedrooms, two of which are downstairs.

The spacious kitchen diner is flooded with light from West-facing windows and from a glazed door out to the pretty courtyard garden. Neutral-coloured wall and base units house integrated appliances and there is plenty of room for a dining table and chairs. The adjacent utility and boot room is a generous and practical space providing additional storage, white goods and access to an extensive and fully boarded loft space.

The double aspect sitting room is well-proportioned yet cosy and provides access to a spacious bathroom with bath and separate shower, and a double bedroom with its own separate entrance to the driveway, ideal for guests or use as a workspace. A further double bedroom on the ground floor benefits from its own ensuite shower room. The two other double bedrooms are both upstairs, each with plenty of eaves storage, and there is further cupboard space on the landing.

Old Ford House benefits from a large, gated driveway with parking for numerous vehicles. There is access to an insulated garage providing plenty of storage or space for a workshop. The pretty West-facing courtyard garden runs across the rear of the property with paved terracing creating ample space for garden furniture to make the most of the sunshine on warmer days.

Cooper & Tanner

Cooper & Tanner

Providence House
The Borough
Wedmore
Somerset
BS28 4EG

+44 (0)1934 713296

Reference: 30158245

Request a viewing for this property

Simply fill out the form below or alternatively call us on 020 7839 0888

* Mandatory fields