Shop
£180,000
High Street, Shepton Mallet, Somerset

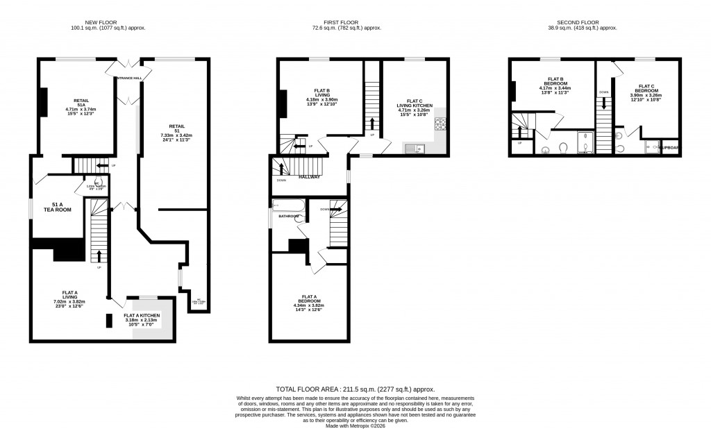
Floorplans For High Street, Shepton Mallet, Somerset

Description


Description

Mid-terrace mixed use premises providing two ground floor retail shops and three self-contained residential maisonettes. Grade II listed and requiring a program of renovation.

With reference to the enclosed floor plan, the internal accommodation is accessed via communal hallway and stairwell which links the ground and first floors. There is a small, enclosed courtyard within the property.

Offering an ideal investment opportunity once refurbished, with good demand for retail and residential accommodation within the area.

Asbestos management plan, fire report and fixed wire installation report contained within the auction legal pack.

Designations

The Property is Grade II Listed and within the Shepton Mallet Conservation Area.

Rights of Way, Wayleaves and Easements

Not subject to any public or private rights of way.

Completion

Completion has been set for 21st May 2026 or earlier by mutual agreement.

Tenure:

Freehold.

51a: Ground Floor Shop – A new lease is currently being put in place. Copies of the lease will be available on request in due course.

51: Ground Floor Shop – Vacant.

Flat 51a: Ground and First Floor maisonette – Vacant

Flat 51b: First and second floor maisonette – Vacant.

Flat 51c: First and second floor maisonette - New Assured Shorthold Tenancy being put in place. Copies of the lease will be available on request in due course.

Further details regarding the occupational status of the Subject Property will be contained within the Auction Legal Pack.

Registering to bid and Administration fee

Cooper and Tanner requires all bidders who wish to bid at our Auction to register beforehand, whether you are intending on bidding in the room, by proxy or online. As part of the registration process, you will be asked to provide card details in order that the Buyer’s Administration Fee of £1,395 inc VAT can be paid if you are successful. A week before the auction a hold will be placed on your account for this sum, which will then be released if you are unsuccessful. This fee will only be taken if you are the successful buyer. The fee is retained by Cooper and Tanner and does not form part of your deposit or completion settlement. Please also be aware that the Buyer’s Administration fee is payable per lot purchased and applicable to all pre-auction sales. If you are successful in purchasing more than one lot, we will contact you following the auction to take subsequent payments for additional lots bought. All checks required by current anti-money laundering legislation must be satisfactorily completed, as part of the registration process before prior approval to bid will be granted; this will include providing proof of funds.

Fees

Potential buyers should be aware that there may be additional fees payable to the Vendor’s solicitor on completion of the sale, details of which will be contained within the auction pack for each lot. At the launch of the property onto the market this information is not always available and so interested parties must refer to the auction pack and satisfy their enquiries.

Deposit

Successful bidders will be required to pay to the Cooper and Tanner Client Account the deposit of 10% of the purchase price within 24 hours of the auction. The account details will be provided to the successful bidder on conclusion of the auction. Once funds are cleared, they will be transferred on to the account of the solicitor acting for the seller. Please ensure that funds are in an account suitable to be able to make an Electronic Transfer from.

Local Council: Somerset Council.

Services: We understand mains water, electricity and drainage are connected. Potential purchasers are advised to make their own enquiries into the adequacy and availability of any services.

Business Rates: Ground Floor Shops: 51A - £3,700 (2026 List), 51 - £4,150 (2026 List).

Council Tax: 51A: Band A; 51B: Band A; 51C: Band A

Solicitors

Thatcher and Hallam, Midsomer Norton

Telephone: 01761 409 337

Katherine Oakes acting

VAT: The purchase price is not subject to VAT.

Viewing:

Strictly by appointment only through the agents Cooper and Tanner 1908 Ltd.

Telephone 03450 347758

Website tags: auction-property, april-auction

Cooper & Tanner

Cooper & Tanner

41 High Street
Glastonbury
Somerset
BA6 9DS

+44 (0)1458 831077

Reference: 30094537

Request a viewing for this property

Simply fill out the form below or alternatively call us on 020 7839 0888

* Mandatory fields