3 Bedroom Semi-Detached
£470,000
Shepherds Green, Everton Road, Hordle, Lymington, SO41

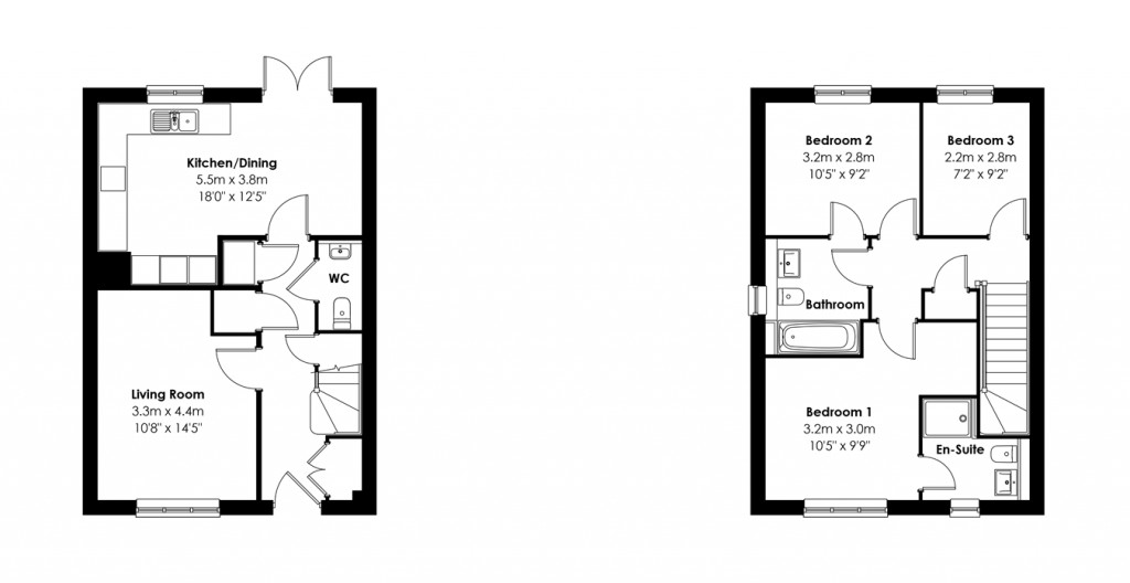
Floorplans For Shepherds Green, Everton Road, Hordle, Lymington, SO41

Description


SHOW HOMES NOW AVAILABLE TO VIEW - A thoughtfully designed three-bedroom home, with a spacious kitchen and dining area, a light-filled living room and a convenient ground-floor WC. Upstairs, the main bedroom enjoys the luxury of an en-suite, complemented by two further bedrooms and a modern family bathroom. Two parking spaces and garage.

INTRODUCTION TO SHEPHERDS GREEN

Tucked away in the sought-after village of Hordle, just moments from the charming harbour town of Lymington, Shepherds Green is a fresh take on countryside and coastal living.

This exclusive Bargate development brings together the best of all worlds, elegant architecture, thoughtful landscaping, and a true connection to nature in a collection of beautifully crafted 2, 3 and 4 bedroom homes.

Every home at Shepherds Green is designed to elevate the everyday. From light-filled open-plan spaces to luxurious finishes and energy-efficient technology, these homes don’t just meet modern expectations they exceed them.

Whether you’re a growing family, a discerning downsizer, or searching for your forever home on the edge of the New Forest, this is a place where quality, comfort and countryside come together in perfect harmony.

THE LOCATION

Shepherds Green sits on the edge of the New Forest National Park and minutes from the Solent coast. Enjoy woodland walks, open countryside and coastal air on your doorstep.

The peaceful village of Hordle is close to the vibrant harbour town of Lymington, with its sailing clubs, cafés and shops.

Excellent schools and strong transport links to Southampton, Bournemouth and London make this an ideal location for families and professionals seeking a rural setting with city access.

KITCHEN SPECIFICATION

Kitchen Furniture

- Designer wall and floor units

- 40mm Laminate worktops with complimentary upstands

- Under cabinet LED spotlights to wall units

Integrated Appliances

- Neff ovens, extractors and induction hobs

- Indesit fridge/freezers and dishwashers

BATHROOM SPECIFICATION

Basins, Baths & WC

- Roca suites to all property types

Wall & Floor Tiling

- Porcelanosa floor tiling to all WCs, ensuites and bathrooms

- Porcelanosa ceramic wall tiling

SUPERIOR SPECIFICATION

Internal Lighting

- Lumi downlighting to kitchen area, bathroom, ensuite, dressing room and WCs, where applicable

- Pendant lighting to all remaining rooms

BT Points & Satellite

- Pre-wired for BT Fibre ready for Openreach

- Pre-wired for Sky Q at multimedia plate

Alarms

- Smoke, heat and carbon monoxide detectors fitted

Heating System

- Daikin air source heat pump

Radiators

- Towelrads compact radiator throughout all homes

- Towel warmers to all bathrooms, ensuite and WC

Heating Control

- Underfloor heating to be zoned and individually controlled by Towelrads smart thermostats

- Radiators controlled by Honeywell T6 smart thermostats

External Finishes

- Sensor lighting to the front of all homes

- Waterproof double sockets fitted to the front and rear of all homes

- Photovoltaic solar panels fitted to all homes

- 32AMP electric vehicle charger fitted to all homes

ADDITIONAL INFORMATION

- Energy Performance Rating: B

- Council Tax Band: TBC

- Maintenance Charge: Estimated to be approximately £400 per annum

- 10 Year Warranty with Premier

- Broadband: TBC

BARGATE CREDENTIALS

Bargate creates high-quality, energy-efficient homes across some of Hampshire’s most sought-after locations.

Each development is carefully planned with generous living spaces, flexible layouts and timeless finishes, combining craftsmanship with modern design and comprehensive warranties for peace of mind.

From first enquiry to moving in, the Bargate team offers personal support at every stage. With a strong focus on sustainability and community, Bargate not only builds exceptional homes but also enhances the landscapes and neighbourhoods around them, delivering lasting value for residents and future generations.

BARGATE’S GREEN ETHOS & NATURE HUB

At Bargate, we believe new communities should grow in harmony with nature. That’s why every development is carefully designed to protect and enhance the local environment — from preserving mature trees to creating dedicated Nature Hubs. These vibrant spaces support British wildlife by providing food, shelter, and safe passage for birds, insects, hedgehogs, and pollinators, helping nature thrive alongside our homes.

Spencers of the New Forest

Spencers of the New Forest

74 High Street
Lymington
Hampshire
SO41 9AL

+44 (0)1590 674222

Reference: 30090925

Request a viewing for this property

Simply fill out the form below or alternatively call us on 020 7839 0888

* Mandatory fields