3 Bedroom Detached
£1,250,000
Ringwood Road, Three Legged Cross, Wimborne, BH21

Floorplans For Ringwood Road, Three Legged Cross, Wimborne, BH21

Description


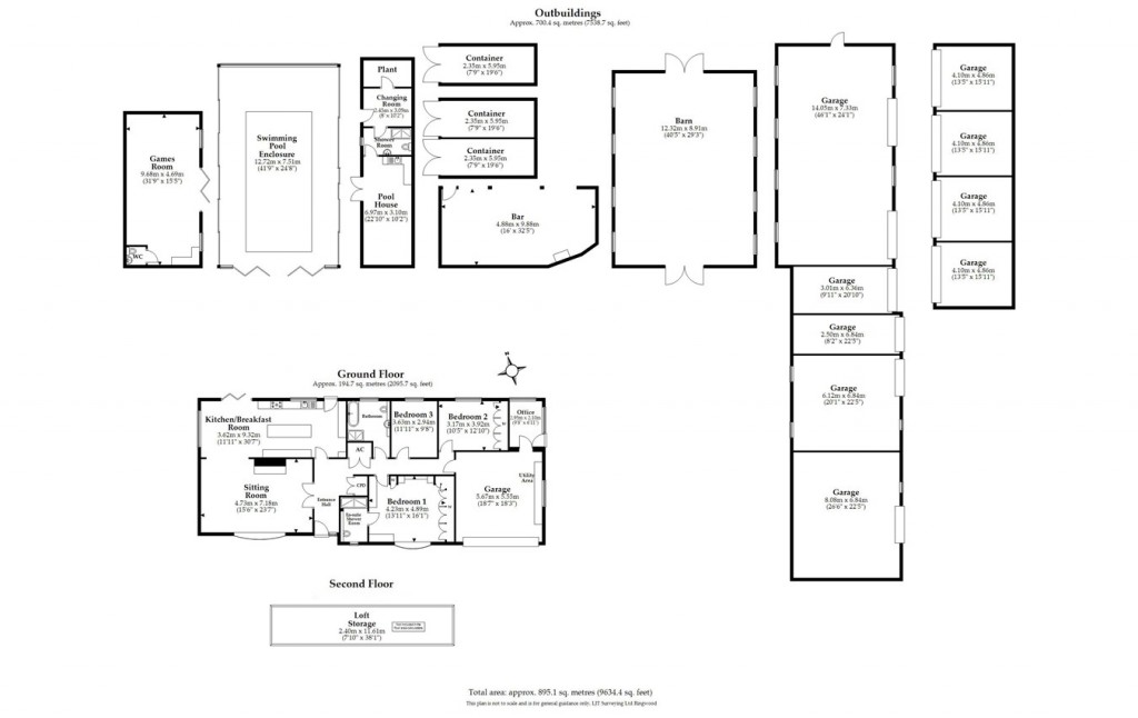
A truly rare and compelling opportunity, this exceptional detached bungalow is set within expansive grounds and approached via a sweeping driveway, offering an outstanding blend of refined single-storey living and a highly versatile mixed-use facility. Perfectly suited to those seeking a lifestyle purchase with commercial flexibility, the property combines a high-quality home with exceptional leisure amenities and genuine income potential. 

An inviting entrance hall leads into a generous sitting room, a light-filled and elegant space ideal for both everyday living and entertaining. The kitchen/breakfast room forms the heart of the home, thoughtfully designed with premium cabinetry, integrated appliances and high-specification finishes, creating a stylish yet practical environment for modern living. The property provides three well-proportioned bedrooms, all finished to an excellent standard, alongside a contemporary bathroom and additional facilities featuring high-quality sanitaryware and tasteful detailing. A dedicated home office offers an ideal work-from-home solution, while a utility area and internal access to the garage further enhance everyday practicality.

Externally, the grounds are a standout feature, showcasing a remarkable outdoor swimming pool with a concertina cover, allowing for year-round enjoyment. A detached games room further elevates the lifestyle appeal, complemented by extensive outdoor space ideal for entertaining and relaxation. A particularly impressive aspect of the property is the extensive range of outbuildings and mixed-use facilities. These include a bar area, substantial barn, multiple storage containers and numerous garages and covered areas, providing exceptional flexibility for a variety of uses, whether for business, hobbies or vehicle storage.

Of special note is the significant income potential, with the grounds lending themselves to motorhome and caravan pitch spaces, subject to the necessary consents. This adds a valuable commercial dimension to an already versatile and unique offering. Set within a highly desirable location and enjoying a beautiful outlook, this one-of-a-kind property seamlessly unites comfort, functionality and investment appeal, presenting a rare opportunity for discerning buyers.

Spencers of the New Forest

Spencers of the New Forest

42 High Street
Ringwood
Hampshire
BH24 1AG

+44 (0)1425 462600

Reference: 30072585

Request a viewing for this property

Simply fill out the form below or alternatively call us on 020 7839 0888

* Mandatory fields