2 Bedroom Duplex
£445,000
Ainslie Place, Lymington, SO41

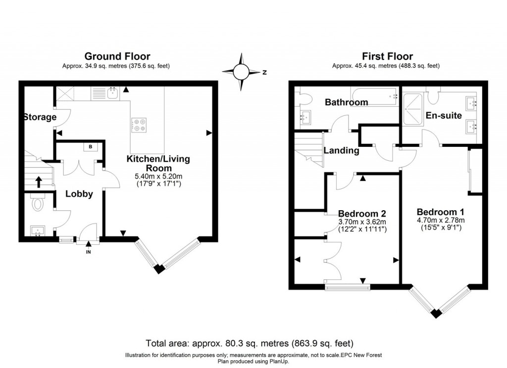
Floorplans For Ainslie Place, Lymington, SO41
EPC Graph for Ainslie Place, Lymington, SO41

Description


A beautifully presented split level two double bedroom duplex with modern open plan living within the Lymington Shore complex with the benefit of an outdoor patio area, River views, secure underground parking and a short walk to the quay, marina and Lymington market town. The property is offered with vacant possession. Energy Performance Rating: B

THE SITUATION

Situated within level walking distance of the beautiful market town of Lymington, with its cosmopolitan shopping and picturesque harbour within easy reach. Lymington has a number of independent shops including some designer boutiques and is surrounded by the outstanding natural beauty of the New Forest National Park. To the north is the New Forest village of Lyndhurst and Junction 1 of the M27, which links to the M3 for access to London. There is also a branch line train link to Brockenhurst railway station (5.5 miles) which offers a half hourly service to London Waterloo with a journey time of approximately 90 minutes.

THE PROPERTY

On entering the property you are welcomed into a light and airy hallway with doors to both the modern cloakroom with white suite and double built in storage cupboard housing the boiler and fitted coat hooks.

The property boasts a sunny open plan living room, with wonderful River views, which flows into the kitchen/dining area, ideal for entertaining.

The kitchen is fitted with a modern range of soft close base cupboards and drawers, matching eye level units with under lights, breakfast bar, stainless steel one and a quarter bowl drainer sink unit with mixer tap, stainless steel Siemens oven with four ring induction hob and extractor hood. Off the kitchen is a cupboard with builtin shelving and plumbing for a washing machine.

Integrated Siemens appliances to include dishwasher, microwave oven and fridge/freezer. There is a useful pantry/cupboard providing additional storage.

Stairs lead from the hallway to the first floor where there are 2 double bedrooms with fitted wardrobes.

The main bedroom benefits from a generous size modern en-suite shower room with two luxury white Villeroy & Boch basins with matching vanity units and walk in Aqualisa shower. There is a full height bay window showcasing the fabulous views of the River and the Isle of Wight.

The family bathroom with Villeroy & Boch suite and Aqualisa shower over the bath serves bedroom two. Underfloor heating throughout the property, double glazing, air filtration system are additional benefits to the property.

There is a remainder of NHBC guarantee until September 2027.

OUTSIDE

There is an easterly facing private terrace area to the front of the property with enough space for seating/entertaining and wonderful views of the River and the Isle of Wight. Steps lead down to the Lymington River where you will find the Lymington Rowing Club. There is an attractive path around the Lymington Shores complex and some gated wooden play areas as well as a large green. There is secure underground parking for 1 car situated on the second floor next to the lift/stairs (space number 35), bike storage and ample visitor parking spaces.

ADDITIONAL INFORMATION

Energy Performance Rating: C Current: 82 Potential: 82

Council Tax Band: E

Tenure: Leasehold - 125 years from January 2012

Maintenance Charge: Payable to Castleford Property Management half yearly, in advance

Annual Ground Rent: Approximately £370.00

Annual Service Charge: Approximately £1521.00

Heating: Gas central heating

Utilities: All mains services connected

Parking: One allocated parking space

Spencers of the New Forest

Spencers of the New Forest

74 High Street
Lymington
Hampshire
SO41 9AL

+44 (0)1590 674222

Reference: 30049646

Request a viewing for this property

Simply fill out the form below or alternatively call us on 020 7839 0888

* Mandatory fields