4 Bedroom Plot
£300,000
Catsfield, Battle, East Sussex

Description


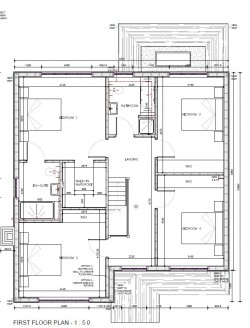
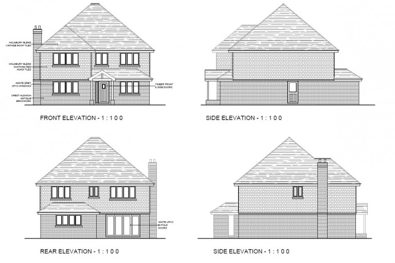
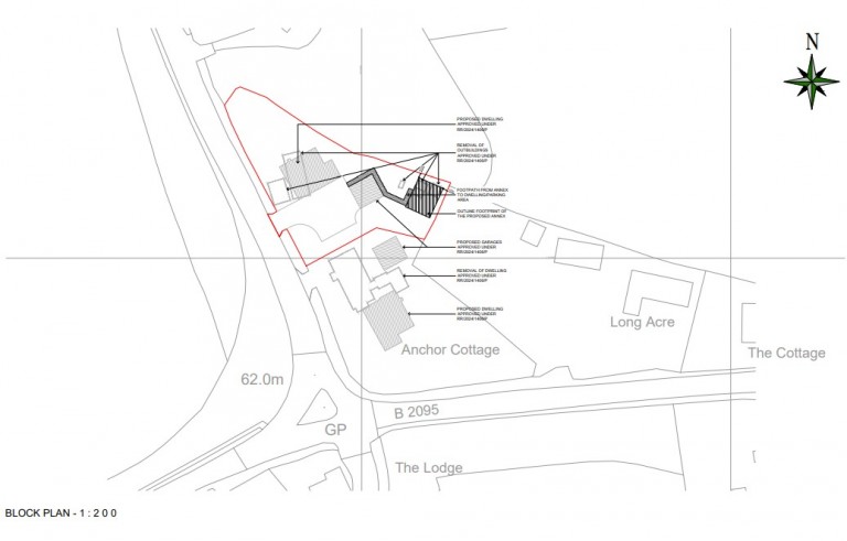
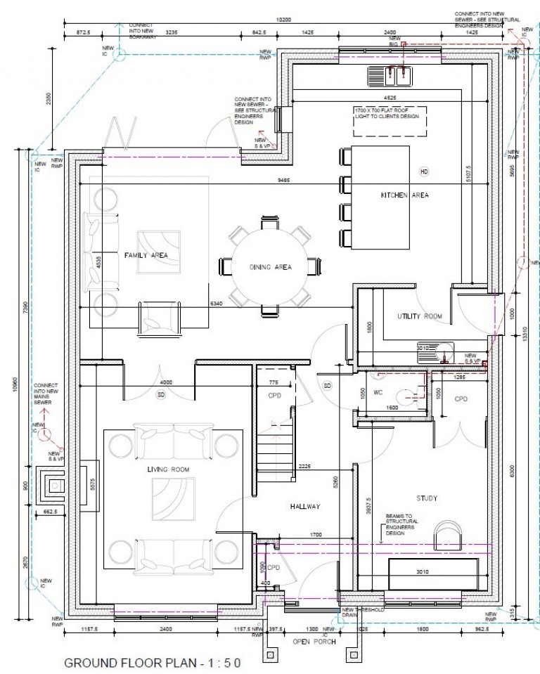
An excellent opportunity to acquire a single self-build plot that occupies a favoured location between the village of Catsfield and the historic town of Battle.  The property has been designed to present attractive brick and tile hung elevations below a tiled roof with accommodation extending to 223 sq.m. with the addition of a detached annexe, garage and studio.  The impressive accommodation provides a wonderful open plan kitchen/living room with two additional reception rooms and four double bedrooms with two en-suites and a family bathroom.  The plot lies prominently level and we are advised water and electric are available close to the site and the proposal allows for a private drainage system. 

Campbell's

Campbell's

74 High Street
Battle
East Sussex
TN33 0AG

+44 (0)1424 774774

Reference: 30045136

Request a viewing for this property

Simply fill out the form below or alternatively call us on 020 7839 0888

* Mandatory fields