Detached House
£150,000
Brent Street, Brent Knoll, Somerset

Description


Description

Located within the popular Somerset village of Brent Knoll, the site has the benefit of full planning permission for the creation of a well-proportioned and attractive house with landscaped garden. Boasting open countryside views, the development has been designed so that the new dwelling provides a modern and contemporary look, whilst being in keeping with its rural surroundings. The dwelling will benefit from large amounts of solar gain with a fully glazed ground floor lounge which looks onto the neighbouring fields. The site extends to approximately 0.24 acres.

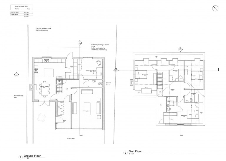
With reference to the proposed floor plan, the dwelling will provide the following accommodation –

Ground Floor – GIA 103m² / 1,109ft²

• Open plan Kitchen and Dining Room

• Utility Room

• Entrance porch

• Internal Hallway

• Study/office

• Cloakroom with WC and wash hand basin

• Living Room

First Floor – 92m² / 990ft² - reduced head height to part

• Master Bedroom with ensuite (shower, WC and wash hand basin).

• Bedroom 2

• Bedroom 3

• Bedroom 4

• Bathroom with Bath, WC and wash hand basin

Total Floor Area: 195m² / 2,099ft²

Outside

The dwelling will be approached directly from the highway via a driveway with a proposed drainage route connecting to the main sewer within Brent Street. The dwelling will benefit from gardens and offroad parking area. The size of the curtilage allows for the creation of a detached garage/workshop/carport, subject to necessary planning consent.

Planning

Full Planning permission with conditions Ref. No. 07/24/00025 was granted 5th December 2025 for – erection of 1no. dwelling with associated car parking and landscaping.

Full details of the above planning application together with associated plans and documents can be downloaded via Somerset Council (formally Sedgemoor District Council) Planning portal - https://sdc.somerset.gov.uk/planning_online

Designations

The land is not situated within an Area of Outstanding Natural Beauty (AONB), SSSI or Nitrate Vulnerable Zone (NVZ).

Not Listed or within a conservation area.

Footpaths, Rights of Way, Wayleaves and Easements

Not subject to any public or private rights of way.

Completion

Completion has been set for 21st May 2026 or earlier by mutual agreement.

Registering to bid and Administration fee

Cooper and Tanner requires all bidders who wish to bid at our Auction to register beforehand, whether you are intending on bidding in the room, by proxy or online. As part of the registration process, you will be asked to provide card details in order that the Buyer’s Administration Fee of £1,395 inc VAT can be paid if you are successful. A week before the auction a hold will be placed on your account for this sum, which will then be released if you are unsuccessful. This fee will only be taken if you are the successful buyer. The fee is retained by Cooper and Tanner and does not form part of your deposit or completion settlement. Please also be aware that the Buyer’s Administration fee is payable per lot purchased and applicable to all pre-auction sales. If you are successful in purchasing more than one lot, we will contact you following the auction to take subsequent payments for additional lots bought. All checks required by current anti-money laundering legislation must be satisfactorily completed, as part of the registration process before prior approval to bid will be granted; this will include providing proof of funds.

Fees

Potential buyers should be aware that there may be additional fees payable to the Vendor’s solicitor on completion of the sale, details of which will be contained within the auction pack for each lot. At the launch of the property onto the market this information is not always available and so interested parties must refer to the auction pack and satisfy their enquiries.

Deposit

Successful bidders will be required to pay to the Cooper and Tanner Client Account the deposit of 10% of the purchase price within 24 hours of the auction. The account details will be provided to the successful bidder on conclusion of the auction. Once funds are cleared, they will be transferred on to the account of the solicitor acting for the seller. Please ensure that funds are in an account suitable to be able to make an Electronic Transfer from.

Ref: GPT/11301

Local Council: Somerset Council.

Services: We understand mains services are situated within Brent Street and available to connect into (subject to necessary consent). Potential purchasers are advised to make their own enquiries into the adequacy and availability of any services.

Drainage Rates: Not applicable.

Solicitors

Ashfords, Exeter

Telephone: 01392 333 912

Charlotte Hill acting

Tenure: Freehold with vacant possession.

VAT: The purchase price is not subject to VAT

Viewing: At any reasonable time, on foot only and with a set of the sale details.

Closest Postcode: TA9 4EH

What3words – zones.carpentry.crowd

Website tags: auction-property, april-auction, land-property

Cooper & Tanner

Cooper & Tanner

41 High Street
Glastonbury
Somerset
BA6 9DS

+44 (0)1458 831077

Reference: 30028232

Request a viewing for this property

Simply fill out the form below or alternatively call us on 020 7839 0888

* Mandatory fields