3 Bedroom Semi-Detached House
£435,000
Kingsdale Close, Battle, East Sussex

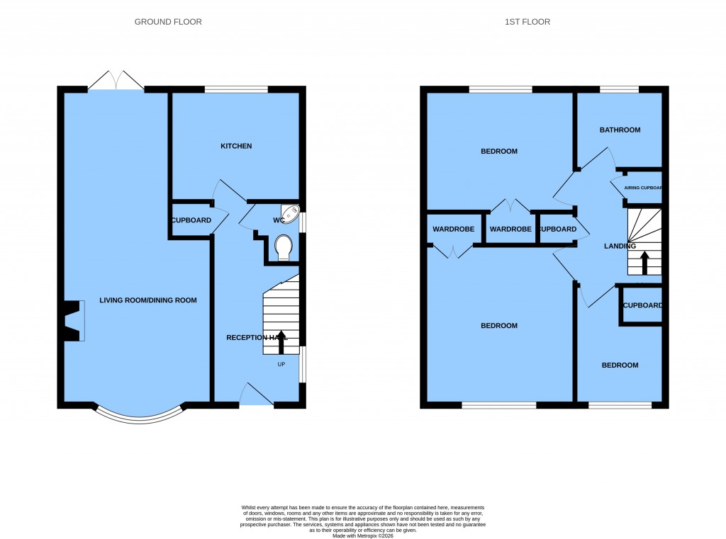
Floorplans For Kingsdale Close, Battle, East Sussex
EPC Graph for Kingsdale Close, Battle, East Sussex}

Description


Viewing is essential to appreciate this immaculate semi-detached three bedroom family home that has recently been upgraded with quality fixtures and fittings, gas central heating and double glazing throughout.  Inside the accommodation is presented in excellent decorative order with an impressive living/dining room that enjoys a dual aspect with double doors opening out to the landscaped garden.  The kitchen is fully fitted and the attractive hallway has a staircase with glazed bannisters rising to the first floor landing.  The loft space is thought to offer potential for conversion subject to any necessary consent, and the three bedrooms are all of good proportions, the main enjoying lovely views towards Battle, and all with built in wardrobes.  The shower room has recently been refitted and outside there is off road parking to the front with a large Indian sandstone patio to the rear, established gardens and a single garage, sub-divided to create two storage rooms.  With its appealing location being within easy reach of the town centre and mainline station, viewing is highly recommended.

Campbell's

Campbell's

74 High Street
Battle
East Sussex
TN33 0AG

+44 (0)1424 774774

Reference: 29999851

Request a viewing for this property

Simply fill out the form below or alternatively call us on 020 7839 0888

* Mandatory fields