5 Bedroom Detached House
£550,000
Church Road, Catsfield

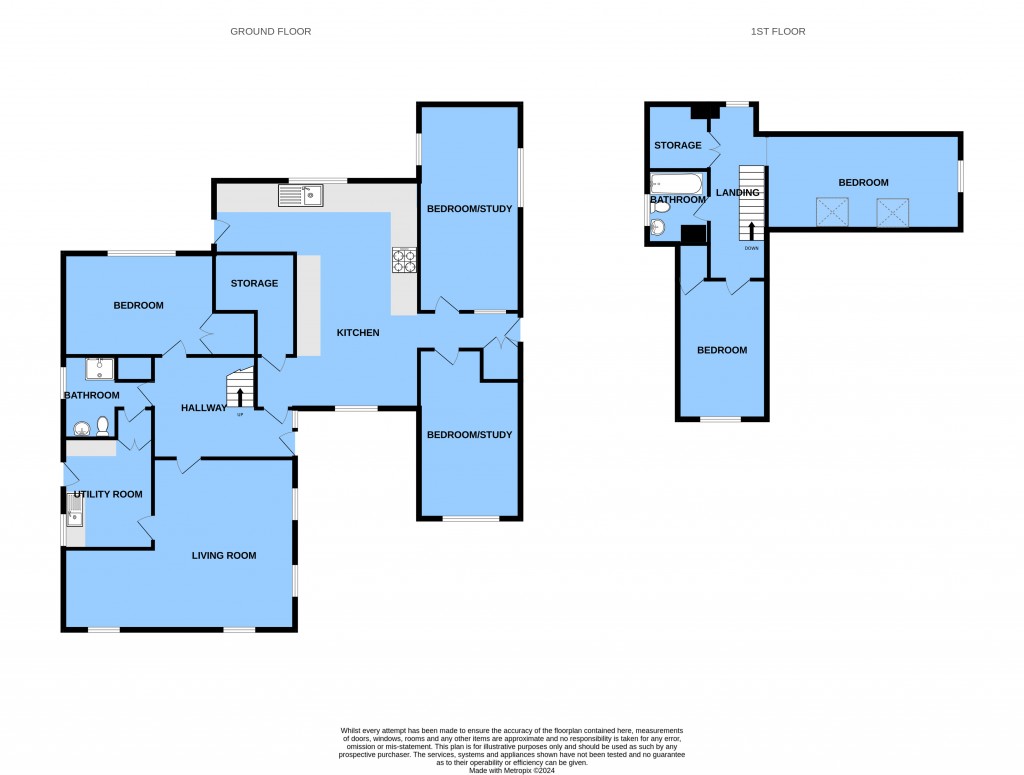
Floorplans For Church Road, Catsfield
EPC Graph for Church Road, Catsfield}

Description


April Cottage is a deceptively spacious 4/5 bedroom detached family home that offers a huge amount of versatility and would suit those looking for both single storey living in a property that has potential for multi-generational or dual family occupancy.  The majority of the accommodation is on the ground floor with a recently fitted kitchen/breakfast room, a large L shaped reception room enjoying a dual aspect and centred around a feature fireplace.  Two additional reception rooms could be configured as bedrooms although are currently being used as offices.  There is also a ground floor bedroom served by a shower room and a utility room.  To the first floor are two large double bedrooms, as well as a family shower room.   Outside to the front is a manageable area of garden and off-road parking for several vehicles with potential to create more and to the rear is an area of enclosed garden.  The property is situated in the centre of Catsfield with its primary school, popular public house and post office convenience store.  Battle is a short drive away with its range of amenities and mainline station offering regular services to London Charing Cross.  The area is well served for schooling both private and comprehensive at primary and secondary levels.  Viewing is highly recommended.

Campbell's

Campbell's

74 High Street
Battle
East Sussex
TN33 0AG

+44 (0)1424 774774

Reference: 29998816

Request a viewing for this property

Simply fill out the form below or alternatively call us on 020 7839 0888

* Mandatory fields