3 Bedroom Town House
£425,000
High Street, Lymington, SO41

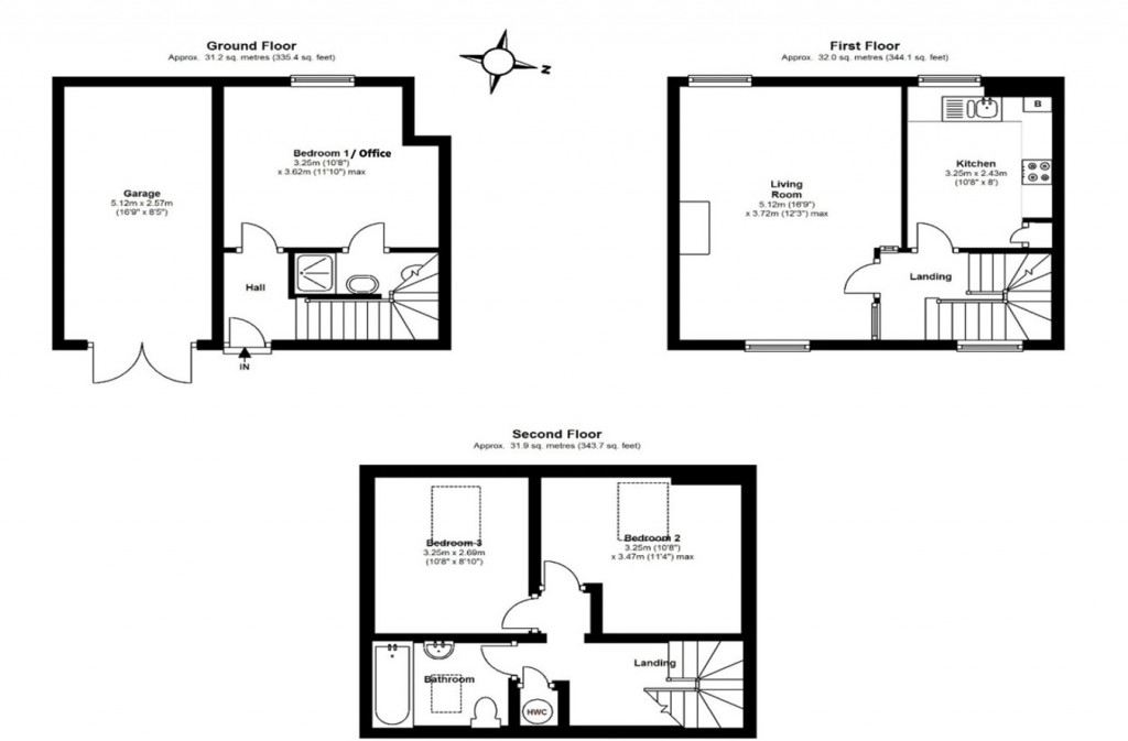
Floorplans For High Street, Lymington, SO41
EPC Graph for High Street, Lymington, SO41

Description


A well presented three bedroom, two bathroom townhouse occupying a highly convenient position just off Lymington High Street with the added benefit of both a garage and off street parking space. Ideal second home, crew house or Air B&B. Energy Performance Rating - D

The house occupies an extremely convenient position in a quiet no through road on the favourable south side of Lymington's thriving High Street. All shops, cafes and restaurants are within extremely easy walking distance as well as Lymington's highly popular sailing facilities. The open spaces of the New Forest National Park lie to the north of the town and there is a railway station within walking distance offering services to Brockenhurst Station every half hour from which there are connecting direct trains to London Waterloo.  

The front door opens to the inner hallway with stairs to the first floor and a door to the first of three bedrooms. This double room has an ensuite shower room and is ideal as an office or Air B&B room. On the first floor is a particularly bright and spacious living room with a dual aspect and feature fireplace. There is a fully fitted kitchen with space and plumbing for a washing machine and slimline dishwasher as well as integrated appliances and a range of high and low level cupboards. The stairs rise again to the second floor where there are two further double bedrooms and a bathroom complete with sink, wc and a bath with shower over. 

Adjoining the house is a single garage with a parking space in front.

Additional Information 

Tenure: Freehold

Council Tax Band: E

Grade II Listed

Energy Performance Rating: D Current: 62 Potential: 73

Services: Mains gas, electric, water and drainage

Heating: Gas central heating

Property Construction: Standard construction

Flood Risk: Very low

Conservation Area: Lymington

Ultrafast broadband with speeds of up to 1000 Mbps is available at the property (Ofcom).

Mobile Signal/Coverage: No known issues, please check with your provider for further clarity.

Spencers of the New Forest

Spencers of the New Forest

74 High Street
Lymington
Hampshire
SO41 9AL

+44 (0)1590 674222

Reference: 29916669

Request a viewing for this property

Simply fill out the form below or alternatively call us on 020 7839 0888

* Mandatory fields