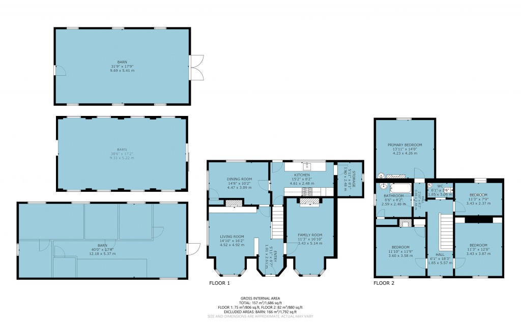
Set in a favoured location, just two miles from the historic town of Battle, this Grade II listed double fronted period property presents a rate opportunity to acquire a home of character with lots of potential to be sympathetically restored. The property offers generous accommodation laid out over two floors with four well proportioned bedrooms and three reception rooms, two enjoying bay windows looking out to the front garden. Whilst in need of comprehensive improvements, the house provides an exceptional opportunity to personalise a home in a desirable location. Externally the property is set within established formal gardens that do currently require attention, but have historically been extensively planted. A driveway provides ample parking and leads to a cluster of outbuildings includes a Nissan hut, block built barn, stable complex and separate timber barn, all offering potential and in need of improvement.
Simply fill out the form below or alternatively call us on 020 7839 0888