3 Bedroom Semi-Detached House
£275,000
Codford, Wiltshire

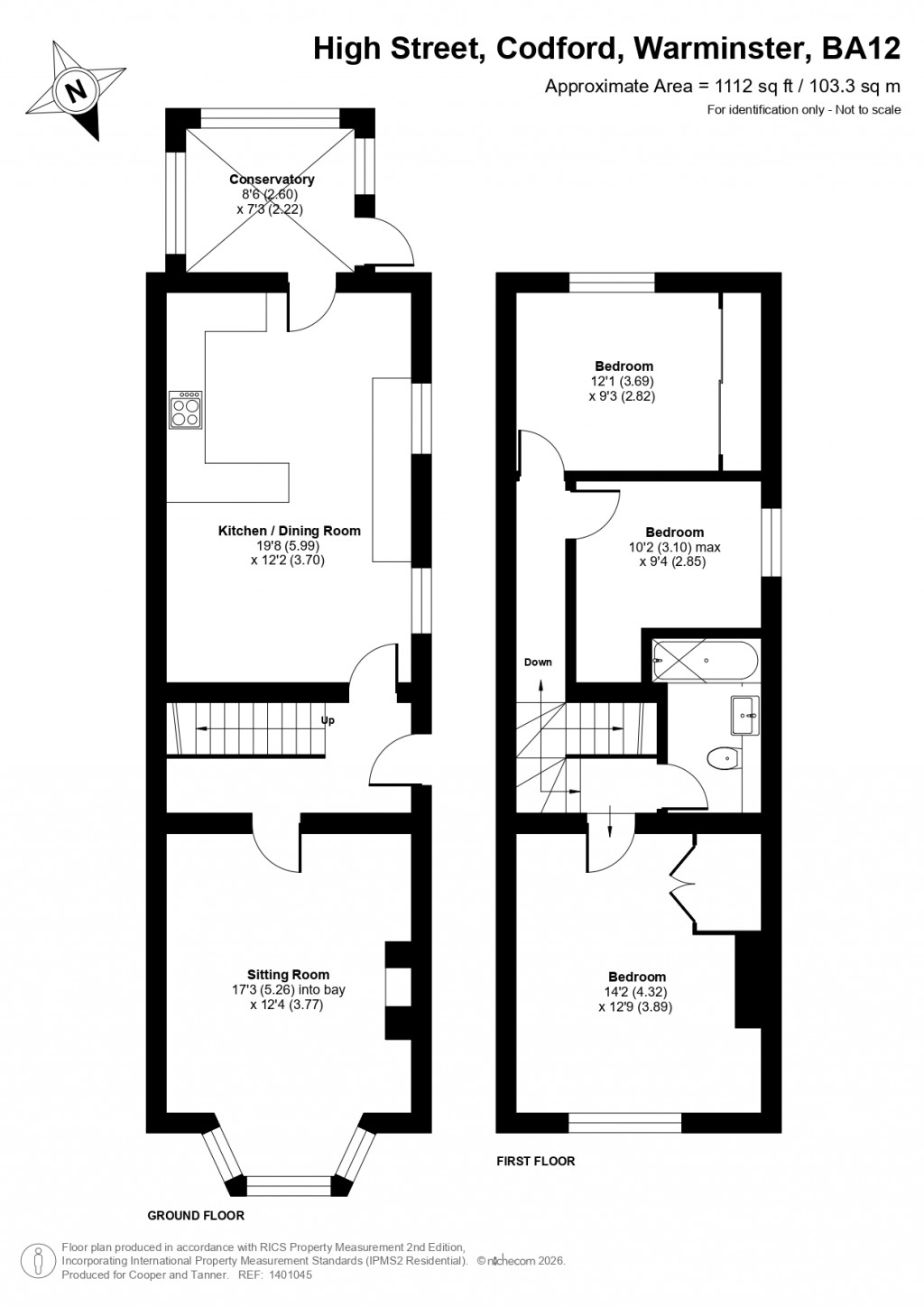
Floorplans For Codford, Wiltshire

Description


Cooper & Tanner

Cooper & Tanner

48-50 Market Place
Warminster
Wiltshire
BA12 9AN

+44 (0)1985 215579

Reference: 29856664

Request a viewing for this property

Simply fill out the form below or alternatively call us on 020 7839 0888

* Mandatory fields