3 Bedroom Bungalow
£775,000
Fryern Court Road, Burgate, Fordingbridge, SP6

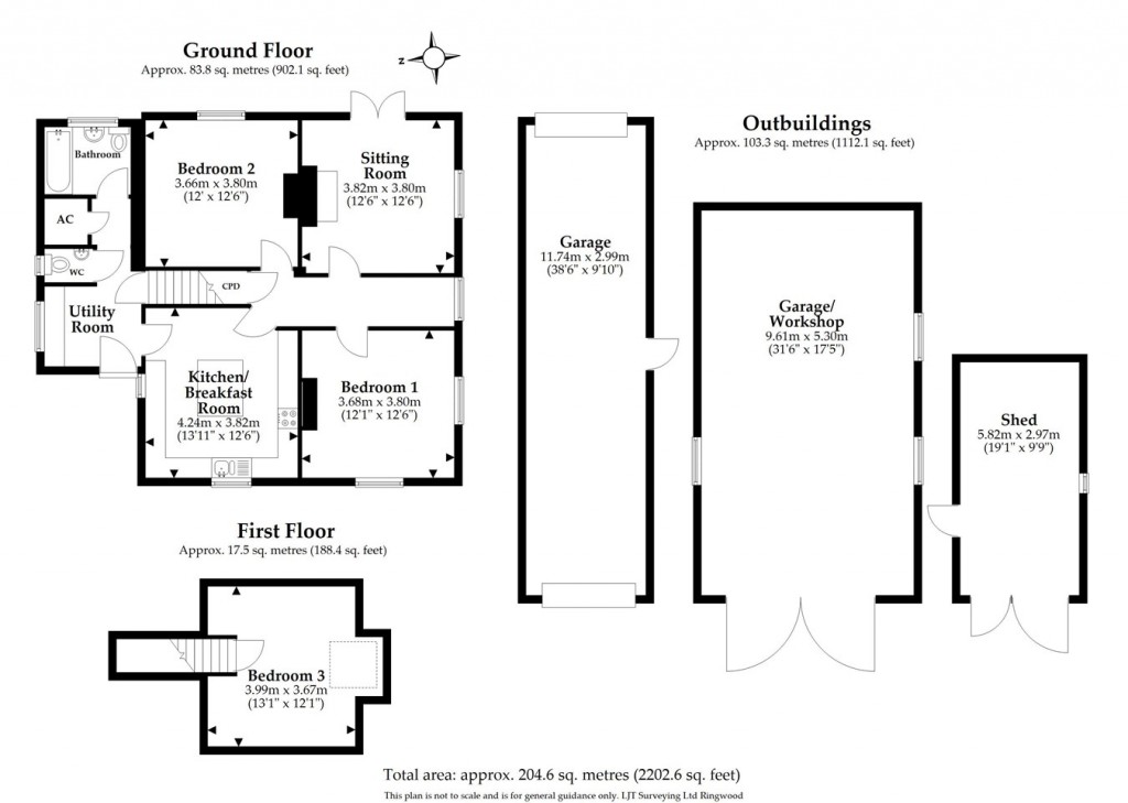
Floorplans For Fryern Court Road, Burgate, Fordingbridge, SP6

Description


Offered with no forward chain, this detached chalet-style bungalow occupies a quiet rural setting and presents a rare opportunity for self-build or multigenerational living, benefitting from a generous plot that includes outline planning permission for an additional detached dwelling (planning ref: NFDC 25/10106). The well-appointed accommodation begins with a spacious entrance/utility hall featuring tiled flooring, built-in storage with worktops, a separate WC and airing cupboard. A modern kitchen is fitted with an excellent range of contemporary units, under-unit lighting, integrated eye-level double oven with grill, induction hob with extractor, dishwasher, and a central island providing further storage and workspace. The sitting room enjoys open views across the gardens and countryside beyond, complemented by a Victorian-style ornate cast iron open fireplace and French doors opening onto the rear garden. The ground floor offers two generous bedrooms overlooking the gardens, a stylish family bathroom with a modern three-piece suite, and stairs rising to a first-floor bedroom. Externally, the property is approached via five-bar wooden gates leading to a gravel driveway and forecourt, with three outbuildings including a garage. Twin wooden gates open to substantial rear gardens, mainly laid to lawn, within which the additional development plot is situated.

Spencers of the New Forest

Spencers of the New Forest

42 High Street
Ringwood
Hampshire
BH24 1AG

+44 (0)1425 462600

Reference: 29856491

Request a viewing for this property

Simply fill out the form below or alternatively call us on 020 7839 0888

* Mandatory fields