4 Bedroom Plot
£255,000
Westbury Road, Warminster, Wiltshire

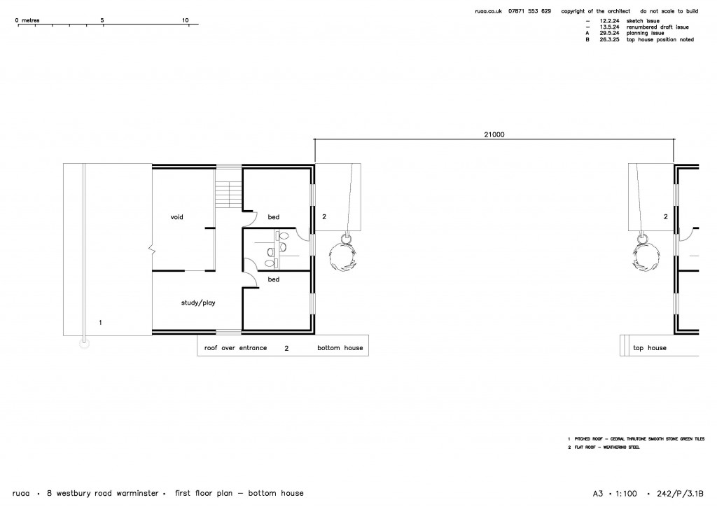
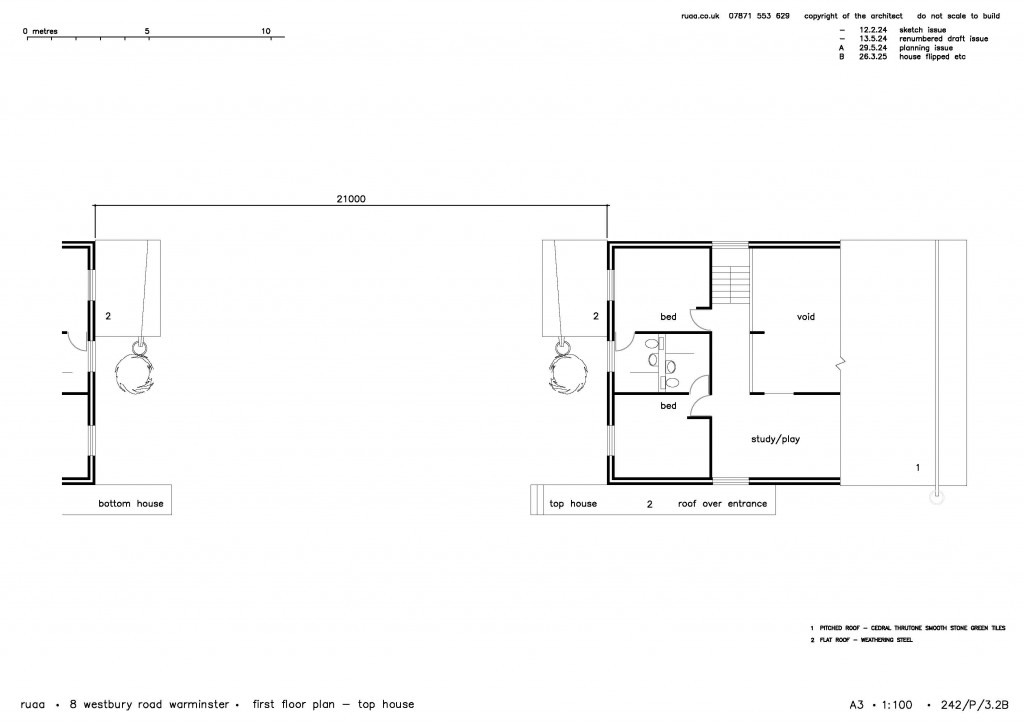
Floorplans For Westbury Road, Warminster, Wiltshire Floorplans For Westbury Road, Warminster, Wiltshire Floorplans For Westbury Road, Warminster, Wiltshire Floorplans For Westbury Road, Warminster, Wiltshire

Description


We are delighted to present an exceptional development opportunity on land to the rear of 8 Westbury Road, Warminster, with full planning consent for two detached homes.

The site is accessed via the side of the existing property and benefits from a gently sloping topography, descending towards the railway line at the rear. Importantly, the land is outside any flood zone catchment, offering peace of mind for future development. Please note: This site will be subject to a Community Infrastructure Levy (CIL) payment.

Cooper and Tanner Warminster residential office (01985 215579) will be well placed to comment upon the local market and provide guidance on potential completed development sales prices.

Interested parties must undertake their own investigations and satisfy themselves in respect of potential scheme end values.

Planning - Planning was approved on 3/12/2025, further details regarding the planning consent are available from the selling agent or can be found via the Wiltshire Council online Planning Portal using reference PL/2024/04959. Interested parties must satisfy their own planning investigations.

Location - The historic market town of Warminster on the western edge of Sailsbury Plain, offers a wide range of shopping including Waitrose, Lidl and Morrisons and leisure facilities including library, sports centre, Snap gym, swimming pool, churches, doctors' and dentists' surgeries, hospital, and post office.

There is a wide selection of both state and private schools in the area, and there are many places of interest to visit in the locality such as the Longleat Estate, Old Wardour Castle, Sherborne Castle, Stourhead Gardens, Wilton House and Stonehenge.

Warminster also benefits from a main line railway station to London Waterloo or Paddington (80 mins) and Bristol (60mins) whilst the nearby A303 provides excellent road links to London to the east, Exeter to the west and Bristol airport to the north-west.

Method of Sale -  Private Treaty

Viewings- Strictly by prior appointment with Cooper and Tanner.

Tel. 01985 215579.

Please be aware this is a piece of land open to the elements and suitable precautions ad care should be taken during viewings.

Local Council  - Wiltshire Council

Services - Prospective purchasers must satisfy themselves as to the location and capacity of any services.

Tenure - Freehold. Vacant possession upon completion.

CIL Payment - The site will be subject to a CIL payment (to be confirmed)

Development-Property

Cooper & Tanner

Cooper & Tanner

48-50 Market Place
Warminster
Wiltshire
BA12 9AN

+44 (0)1985 215579

Reference: 29845089

Request a viewing for this property

Simply fill out the form below or alternatively call us on 020 7839 0888

* Mandatory fields