6 Bedroom Country House
£1,395,000
Arnewood Bridge Road, Sway, Lymington, SO41

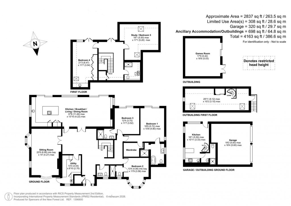
Floorplans For Arnewood Bridge Road, Sway, Lymington, SO41

Description


A beautifully presented country home with detached ancillary accommodation, having undergone extensive refurbishment by the current vendors and now offering modern reconfigured accommodation extending to circa 3500 sq ft with large open plan expanses maximising the light and south facing elevations across the gardens and tree lined paddock land to the surround.

The property benefits from five bedrooms with three ensuites, a detached one bedroom ancillary accommodation, double garage and fantastic garden room/gym set within a superb plot of circa 0.8 acre. A real lifestyle property within walking distance of the village amenities and train station.

A covered storm porch over the main entrance door leads into a generous reception hall providing access to the ground floor accommodation with stairs leading up to the first floor and attractive oak flooring.

Two sets of double doors lead from here into a stunning extended and newly fitted family kitchen with extensive glazing including patio doors and a picture window overlooking the garden to the rear and oak flooring with underfloor heating. Extensive painted wooden kitchen cabinetry is set under quartz worksurfaces offering storage at base and eye level with central feature kitchen island housing an integrated induction hob, with extractor hood over inset into a suspended ceiling with breakfast bar seating. Further appliances include a full height fridge and freezer, dishwasher, wine cooler and inset sink unit with hot water tap. There is ample space for dining with a cosy seating area to the other side with a central feature open fireplace, storage units and log store.

The formal sitting room is set adjacent, again with dual aspects overlooking the front and side garden. A feature electric fire is set within a bespoke media unit providing for additional storage.

Set off the hallway is a useful utility room providing further storage units and space for coats and shoes, an inset Belfast sink with space for appliances and hot water tanks. A door leads out to the front from here.

A cloakroom completes the reception areas.

From the main hallway, a hallway leads into the bedroom accommodation providing access to the three double, ensuite bedrooms. The principal suite offers a walk-in wardrobe with stunning ensuite shower room with vanity wash basin, large walk-in shower and double ended bath. From the bedroom area, patio doors leading out to the rear gardens with open views across to Sway Tower.

The first floor offers another two generous double bedrooms with a supporting bathroom set off a galleried landing which provides access to a large balcony which makes for a lovely seating area enjoying elevated views across the paddocks to the rear. Bedroom four benefits from fitted wardrobes and a vanity sink unit with access to the balcony and an airing cupboard is set off the landing.

Ancillary Accommodation: 

Set to the rear of the double garage, the ancillary accommodation is self contained with an open plan kitchen/living room on the ground floor which benefits from a wood burning stove and electric heating. A shower room is set off this area.

Spiral stairs lead up the first floor bedroom area which spans the full depth of the garage underneath with juliet balcony overlooking the garden area and paddocks to the side.

New Specifications Include:

- Heat recovery ventilation to ground floor bedrooms

- Refitted ensuite bathrooms, family bathroom and cloakroom

- Newly installed kitchen and utility room

- New internal doors and ironmongery

- Laid oak flooring and carpeting

- Replaced balcony flat roofing, guttering and soffits

- New dormer facing and tiling

- Composite front door and new side door

- Upgraded fuse box and mains electrical cabling

- New mains gas supply, boiler and pump

- Installed large paved terrace to rear

- Upgraded electrical radiators to the annexe

- Landscaping to garden with new entrance gates and pillars

The property is set back from the road along a gravelled drive leading up to gated access onto a large turning drive providing for ample parking and access to the main property, double garage and annexe. The gardens are a real feature of the property wrapping around on all sides providing privacy and seclusion. The plot extends to approximately 0.8 acre and is enclosed by fencing. Mainly laid to lawn, the rear garden also offers a feature pond with bridge walkway, orchard area, mature hedging and small wooded area with ornamental trees, shrubs and planting. A large terrace abuts the rear of the property providing for an ideal area for alfresco dining and entertaining supported by a further rear seating area set under a pergola catching the last of the evening sun. The garden benefits from outdoor feature lighting, electrical points and water supply.

A mediterranean style garden has been created to the side with attractive feature planting including olive and bay trees, making an ideal area to create a kitchen garden.

An attractive garden room, originally stables, offers versatile options for use as a home office, gym or seating with glazing overlooking the gardens.

Additional Information: 

Tenure: Freehold

Council Tax Band: F

Energy Performance Rating: C Current: 74 Potential: 77

Services: Mains gas, electric and water

Private drainage: Septic tank

Heating: Gas central heating & underfloor heating in kitchen/dining room

The property is affected by a Tree Preservation Order (TPO).

Property Construction: Standard construction

Flood Risk: Very low

Broadband: ADSL Copper-based phone landline

Superfast broadband with speeds of up to 80 Mbps is available at the property (Ofcom).

Mobile Signal/Coverage: No known issues, please check with your provider for further clarity.

Spencers of the New Forest

Spencers of the New Forest

56 Brookley Road
Brockenhurst
Hampshire
SO42 7RA

+44 (0)1590 622551

Reference: 29810915

Request a viewing for this property

Simply fill out the form below or alternatively call us on 020 7839 0888

* Mandatory fields