4 Bedroom Detached
£830,000
Whitworth Way, Wimborne, BH21

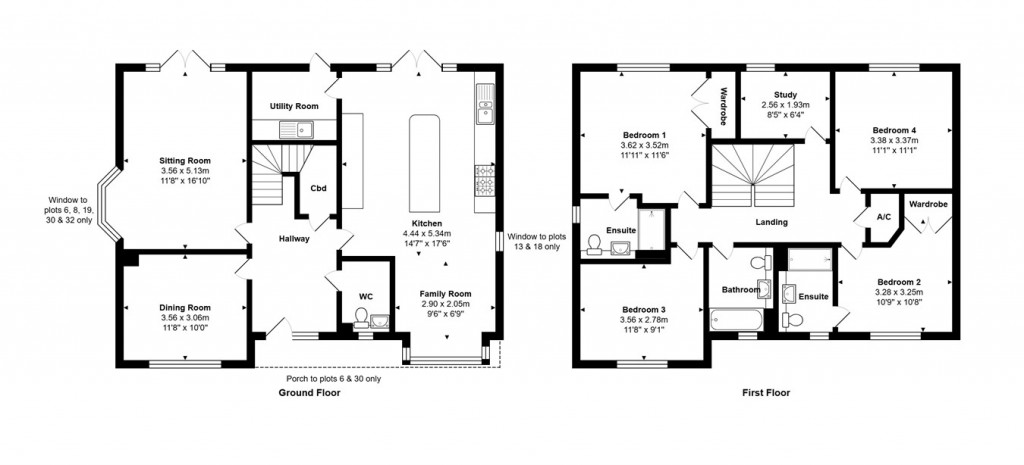
Floorplans For Whitworth Way, Wimborne, BH21

Description


Featuring an appealing gabled roof, classic brick exterior and symmetrically arranged windows, the four-bedroom Walnut reflects the timeless charm of the Lady Wimborne Cottage. Set within Oakwood Park’s tranquil riverside surroundings, this characterful home offers a peaceful setting with a strong connection to nature.

DISCOVER OAKWOOD PARK BY CALA HOMES

A premium selection of 2, 3, 4 and 5 bedroom homes set in the heart of Dorset. These elegant new properties are located close to the lively market town of Wimborne Minster and the charming villages of Oakley and Canford Magna, offering convenient access to a wide range of local amenities.

With an all-inclusive specification and traditional brick construction, the homes at Oakwood Park provide a highly desirable standard of living. They offer spacious, high-quality interiors, including luxury kitchens with integrated appliances as standard, along with included flooring and either garages or dedicated parking.

THE WALNUT

Inside, the elegance continues with a stylish kitchen/family room, complete with a front-facing bay window and French doors that open onto the rear garden, alongside a convenient adjoining utility room. Additionally, there is a separate dining room and a sitting room, which also benefits from French doors leading out to the garden.

Upstairs, a sense of balance is evident, with each of the four bedrooms occupying its own corner of the layout. Bedrooms 1 and 2 include the luxury of en-suite bathrooms with VADO showers and fitted wardrobes for extra storage. Bedrooms 3 and 4 share a family bathroom conveniently located opposite the stairs. A private study provides an ideal space for working from home. Completing this home’s high specification, it also features an EV charging point and PV panels.

SPECIFICATION

Kitchens & Utility Room

- Individually designed kitchen

- Stone work surfaces with matching upstand (to 4 & 5 bedroom homes)

- Bosch appliances to four and five bedroom homes

- Amtico flooring in the open plan kitchen area

Utility Room

- Space for a free-standing washing machine*

- Space for a free-standing tumble dryer*

Cloakroom, Bathroom & Ensuites

- White Roca sanitaryware

- Porcelanosa tiling to walls*

- Amtico flooring

Electrical

- Phone and data point in the home office location

- Fibre to the home for superfast wireless broadband

- Power and lighting in the garage*

- Electric vehicle charging point

Internal Finishes

- Wardrobe in bedroom 1 & 2 (to 4 & 5 bedroom homes)

- Carpet in the living room, dining room, study, stairs, landing and all of the bedrooms

Environmental Details

- Energy efficient and thermostatically controlled gas central heating and A-rated boiler to minimise usage

- Insulation within roof spaces and external wall cavities to limit heat loss in the winter and reduce heat gain in the summer

- Low energy lighting throughout

- Photovoltaic panels to all homes

DEVELOPER INCENTIVES MAY BE AVAILABLE ON THIS PLOT, PLEASE CONTACT FOR FURTHER DETAILS

For detailed terms and conditions, please speak to one of our Sales Consultants.

Cala will obtain two independent valuations based on achieving a sale in a 4-6 week period. Part Exchange considered subject to our purchasing criteria. Part Exchange available on selected plots and not in conjunction with any other offer unless agreed by us at time of reservation. Full terms and conditions and purchasing criteria can be found at cala.co.uk

Spencers of the New Forest

Spencers of the New Forest

42 High Street
Ringwood
Hampshire
BH24 1AG

+44 (0)1425 462600

Reference: 29782040

Request a viewing for this property

Simply fill out the form below or alternatively call us on 020 7839 0888

* Mandatory fields