The five-bedroom Wisteria boasts a beautifully balanced exterior, featuring elegant matching roof gables, a chimney with decorative brickwork and charming arched windows, all reflecting the iconic Lady Wimborne style. Designed to complement its tranquil waterside surroundings, this impressive home offers timeless character in an exceptional setting.
DISCOVER OAKWOOD PARK BY CALA HOMES
A premium selection of 2, 3, 4 and 5 bedroom homes set in the heart of Dorset. These elegant new properties are located close to the lively market town of Wimborne Minster and the charming villages of Oakley and Canford Magna, offering convenient access to a wide range of local amenities.
With an all-inclusive specification and traditional brick construction, the homes at Oakwood Park provide a highly desirable standard of living. They offer spacious, high-quality interiors, including luxury kitchens with integrated appliances as standard, along with included flooring and either garages or dedicated parking.
THE WISTERIA
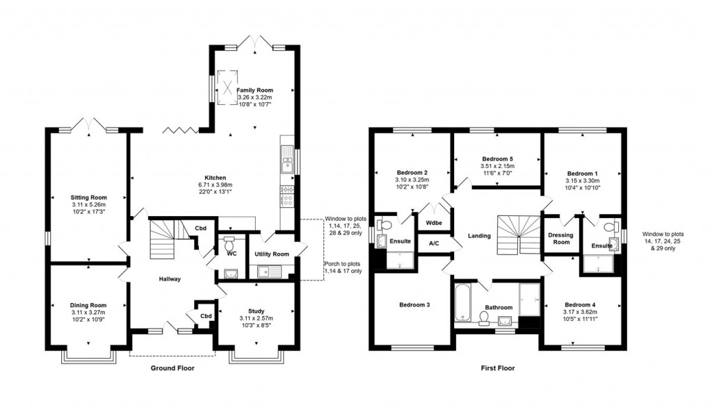
At the front, a separate dining room and a private study are both enhanced by bay windows that fill the rooms with natural light. The spacious dual-aspect sitting room connects seamlessly to the garden via French doors, while the kitchen/family room also opens onto the garden through bi-fold doors and an additional set of French doors, with an adjoining utility room adding practical convenience.
Upstairs, all five bedrooms are generously proportioned. Bedroom 1 enjoys the luxury of an en-suite and a separate dressing room, while Bedroom 2 benefits from its own en-suite with Porcelanosa wall tiling and a fitted wardrobe for extra storage. A family bathroom is positioned opposite the stairs, accompanied by a large airing cupboard. This energy-efficient home is completed with PV panels and an EV charging point as standard.
SPECIFICATION
Kitchens & Utility Room
- Individually designed kitchen
- Laminate work surfaces with matching upstand (to three bedroom homes)
- Stone work surfaces with matching upstand (to four and five bedroom homes)
- Indesit appliances to three bedroom homes
- Bosch appliances to four and five bedroom homes
- Amtico flooring in the open plan kitchen area
Utility Room
- Space for a free-standing washing machine*
- Space for a free-standing tumble dryer*
Cloakroom, Bathroom & Ensuites
- White Roca sanitaryware
- Porcelanosa tiling to walls*
- Amtico flooring
Electrical
- Phone and data point in the home office location
- Fibre to the home for superfast wireless broadband
- Power and lighting in the garage*
- Electric vehicle charging point
Internal Finishes
- Wardrobe in bedroom 1 (to 3 bedroom homes)
- Wardrobe in bedroom 1 & 2 (to 4 & 5 bedroom homes)
- Carpet in the living room, dining room, study, stairs, landing and all of the bedrooms
Environmental Details
- Energy efficient and thermostatically controlled gas central heating and A-rated boiler to minimise usage
- Insulation within roof spaces and external wall cavities to limit heat loss in the winter and reduce heat gain in the summer
- Low energy lighting throughout
- Photovoltaic panels to all homes
Simply fill out the form below or alternatively call us on 020 7839 0888