3 Bedroom Detached House
£375,000
Marshalls Elm, Street, Somerset

Floorplans For Marshalls Elm, Street, Somerset
EPC Graph for Marshalls Elm, Street, Somerset}

Description


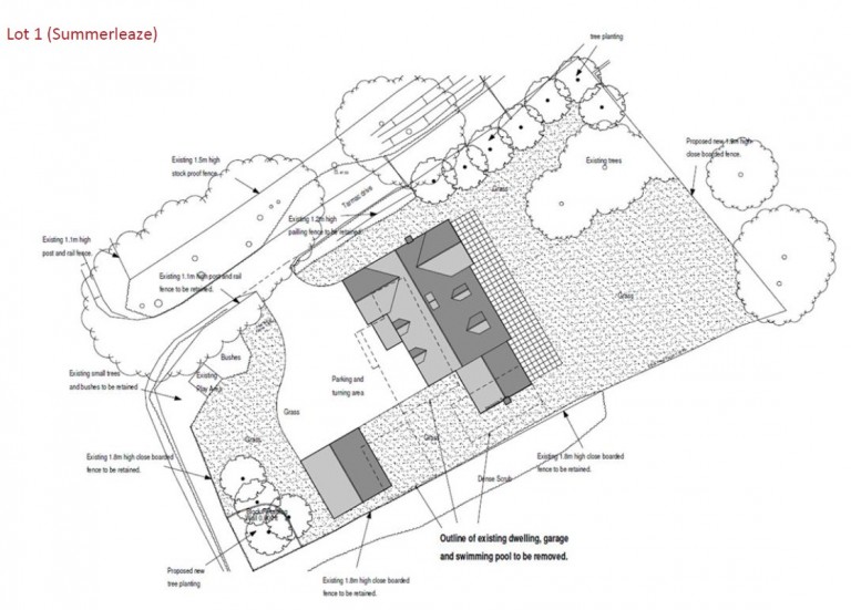
A superb and increasingly rare opportunity to renovate/adapt a detached house to suit your needs and create a unique and substantial family home, set within a generous c0.34 acre plot on the edge of Street. Located near the sought after Overleigh conservation area and Millfield School, no onward chain.

Cooper & Tanner

Cooper & Tanner

58a High Street
Street
Somerset
BA16 0EQ

+44 (0)1458 840416

Reference: 29671225

Request a viewing for this property

Simply fill out the form below or alternatively call us on 020 7839 0888

* Mandatory fields