2 Bedroom Detached
£1,500,000
Shorefield Way, Milford on Sea, Lymington, SO41

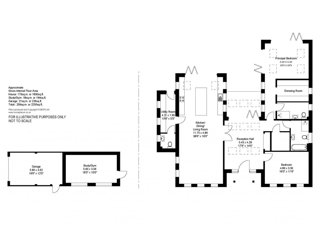
Floorplans For Shorefield Way, Milford on Sea, Lymington, SO41
EPC Graph for Shorefield Way, Milford on Sea, Lymington, SO41

Description


A stunning newly built two double bedroom detached bungalow, beautifully finished and thoughtfully designed to offer a stylish yet highly practical home. The property features a open plan living, double garage, a versatile garden office or gym, ample off-street parking, and eco-friendly touches such as solar panels and an air source heat pump. Ideally located within walking distance of village amenities and the sea, this home combines contemporary comfort with coastal convenience.

Milford on Sea is one of the area's most popular villages enjoying glorious swimming beaches, close proximity to the open spaces of The New Forest and a vibrant village green surrounded by cafe's, wine bars, restaurants and boutiques. The village has an excellent primary school with nearby prep schools at Durlston and Ballard in nearby New Milton which also has a mainline railway station providing direct services to Waterloo in just under 2 hours. The open spaces of the New Forest National Park lie to the north of the village and provide excellent opportunities for walking, cycling and general recreation. The nearby market town of Lymington (4 miles to the north east) offers a wider range of facilities as well as numerous sailing clubs and marinas.

Upon entering the property, you are immediately struck by the impressive reception hall, featuring a vaulted ceiling, herringbone flooring, and expansive glazing that offers views of the attractive garden and courtyard. The space is flooded with natural light, and the hallway provides useful fitted storage for coats and shoes, as well as access to all main rooms. The large, triple-aspect open-plan kitchen, dining, and sitting area serves as the heart of the home. It boasts modern living at its finest, with a generous kitchen island with seating—perfect for cooking and entertaining—alongside a contemporary shaker-style kitchen fitted with an array of integrated Miele appliances, including ovens, a microwave, warming plate, induction hob with integrated extraction, fridge/freezers, and a wine fridge. A door leads to a separate utility room with additional storage cupboards, a convenient WC, and access to the rear garden.

The bedrooms are thoughtfully positioned on the opposite side of the property, providing privacy and comfort. The principal suite is located at the rear and features an impressive vaulted ceiling, large sliding doors opening onto the courtyard, and an electric skylight. Generously proportioned, it includes a walk-in dressing room and a spacious ensuite shower room with a walk-in shower and twin basins. The second bedroom is also sizable and benefits from access to the large family shower room. Additionally, the property offers a substantial walk-in boiler room housing the pressurized water cylinder, as well as a loft hatch with a ladder leading to a generously boarded loft. Sustainable and cost-efficient features include solar panels on the garage and an air source heat pump, making this property economical to run.

Situated on a corner plot, the garden is generous and wraps elegantly around the property. Carefully landscaped, it features an evergreen hedge that provides privacy and a sense of seclusion. The lawn is well-maintained, complemented by a gated driveway leading to the garage. A paved path connects the garage to a versatile home office, offering excellent additional accommodation. The garden is designed with entertaining in mind, featuring a large gazebo and a covered outdoor seating area equipped with heaters, allowing enjoyment of the space throughout the year.

Additional Information

Tenure: Freehold

Council Tax: F

EPC: D Current: 59 Potential: 80

Property Construction: Brick elevations with slate roof

Utilities: Mains electric, water and drainage. The property also benefits from solar PV panels and storage batteries. There is no mains gas supply.

Heating: Electric

Broadband: Cable broadband. Broadband with speeds of up to 65mbps is available at this property.

Electric Vehicle (EV) Charging Point: Yes

Parking: Private driveway and garage

Spencers of the New Forest

Spencers of the New Forest

74 High Street
Lymington
Hampshire
SO41 9AL

+44 (0)1590 674222

Reference: 29657485

Request a viewing for this property

Simply fill out the form below or alternatively call us on 020 7839 0888

* Mandatory fields