Commercial Property
£70,000
Fortescue Road, Radstock, Somerset

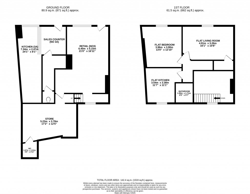
Floorplans For Fortescue Road, Radstock, Somerset

Description


For sale by public auction. Thursday 20th November 2025, 12pm. The Theatre, The Royal Bath and West Showground, Shepton Mallet. Bidding available in person, by proxy or online via livestream. Auction guide price £70,000 to £90,000* A mixed use investment opportunity located in the centre of the town. Comprising two commercial units, formerly retail and takeaway, with residential space over. In need of renovation and improvement.

Description

3 and 3a Fortescue Road offers a great deal of scope and potential to create a good mixed use investment opportunity in the heart of the town.

Number 3a comprises a lock up shop unit, which was most recently used as a food takeaway business. It is divided to provide a sales counter area with an inner hall way leading from this to a cloakroom. The kitchen area lies adjacent to the sales counter.

Number 3 comprises an open retail space to the front with a store and cloakroom to the rear.

The residential element is accessed through Number 3 with stairs leading to a landing with doors opening into the sitting room, kitchen, double bedroom and bathroom.

The property requires a scheme of renovation throughout and, subject to any consents required, could be reconfigured to alter the internal layout.

Outside

The property benefits from a small outdoor yard area to the rear that would provide parking for one or two vehicles.

Completion

Completion has been set for Thursday 18th December 2025 or earlier by arrangement.

Local Council

Bath and North East Somerset

Services

There is mains water, electricity, gas and drainage connected property. Potential purchasers must rely on their own enquiries with regard to the location of any services and making any connection into them.

Tenure

Freehold. Vacant possession.

VAT

The purchase price is not subject to VAT

Business Rates

The Rateable Value of Number 3 is £3750

The Rateable Value of Number 3a is £3850

EPC

3a – F

3 - D

Viewing

By appointment through Cooper and Tanner Commercial department on 01761 411010

Solicitor

Thatcher and Hallam, Midsomer Norton Katherine Oakes acting. Tel 01761 414646

Registering to bid and Administration fee

Cooper and Tanner require all bidders who wish to bid at our Auction to register beforehand, whether you are intending on bidding in the room, by proxy or online. As part of the registration process, you will be asked to provide card details in order that the Buyer’s Administration Fee of £1395 inc VAT can be paid if you are successful. A week before the auction a hold will be placed on your account for this sum, which will then be released if you are unsuccessful. This fee will only be taken if you are the successful buyer. The fee is retained by Cooper and Tanner and does not form part of your deposit or completion settlement. Please also be aware that the Buyer’s Administration fee is payable per lot purchased. If you are successful in purchasing more than one lot, we will contact you following the auction to take subsequent payments for additional lots bought. All checks required by current anti-money laundering legislation must be satisfactorily completed, as part of the registration process before prior approval to bid will be granted; this will include providing proof of funds.

Deposit

Successful bidders will be required to pay to the Cooper and Tanner Client Account the deposit of 10% of the purchase price within 24 hours of the auction. The account details will be provided to the successful bidder on conclusion of the auction. Once funds are cleared, they will be transferred on to the account of the solicitor acting for the seller. Please ensure that funds are in an account suitable to be able to make an Electronic Transfer from.

Fees

Potential buyers should be aware that there may be additional fees payable to the Vendor’s solicitor on completion of the sale, details of which will be contained within the auction pack for each lot. At the launch of the property onto the market this information is not always available and so interested parties must refer to the auction pack and satisfy their enquiries.

auction-property, november-auction

Cooper & Tanner

Cooper & Tanner

6 The Bridge
Frome
Somerset
BA11 1AR

+44 (0)1373 455060

Reference: 29626573

Request a viewing for this property

Simply fill out the form below or alternatively call us on 020 7839 0888

* Mandatory fields