4 Bedroom Detached House
£710,000
Bradshaw Close, Guestling, East Sussex

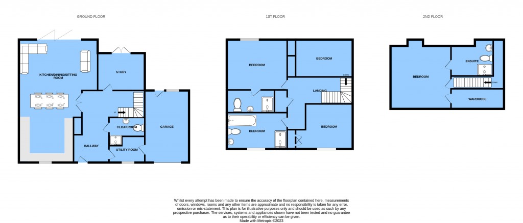
Floorplans For Bradshaw Close, Guestling, East Sussex

Description


Bradshaw Close is a development of luxury houses by Prestige Homes. Approached over a private road with brick piered entrance the property enjoys an elevated location with stunning rural views towards the High Weald. Built to an exacting standard using selected materials, the properties present attractive birds beak pointed brick work below a tiled roof with in-frame double glazed windows. Benefiting from all the latest regulations, the properties enjoy high levels of insulation, efficient gas fired boilers with under floor heating to the ground floor and radiators to the first and second floors. At the heart of the house is a stunning kitchen/living room with an extensive list of top of the range AEG kitchen appliances and Quartz work surfaces. The kitchen has pocket sliding doors into a large living room with bi-fold doors to the garden. There is a large utility room, four bedrooms over the first and second floors with stunning master bedroom suite that occupies the second floor with a walk-in dressing room and luxurious en-suite bathroom.

The landscaped gardens enjoy large areas of patio, with views beyond. There is a single garage with electric sectional door and a block paved driveway.

Note: When all the properties are sold, a management company will be set up to maintain the communal areas and private pumping station.

Campbell's

Campbell's

74 High Street
Battle
East Sussex
TN33 0AG

+44 (0)1424 774774

Reference: 29584325

Request a viewing for this property

Simply fill out the form below or alternatively call us on 020 7839 0888

* Mandatory fields