4 Bedroom Bungalow
£950,000
Fairfield Close, Lymington, SO41

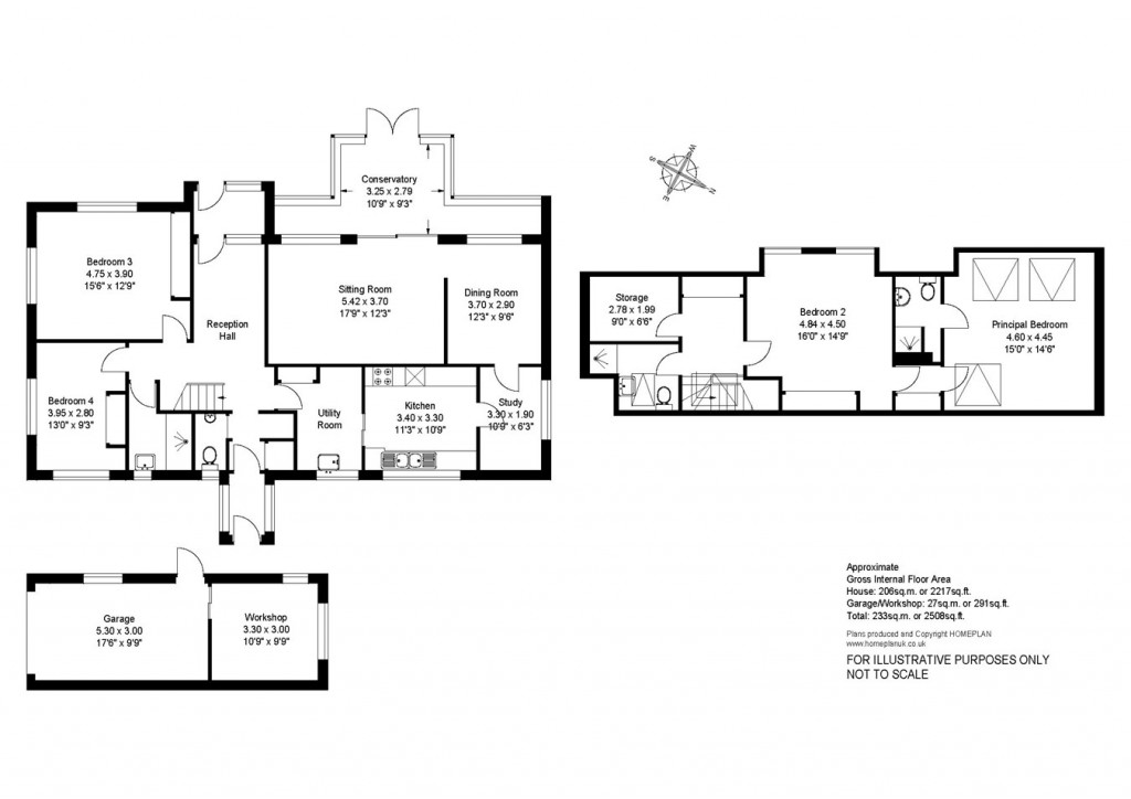
Floorplans For Fairfield Close, Lymington, SO41
EPC Graph for Fairfield Close, Lymington, SO41

Description


A generously sized four-bedroom chalet bungalow set on an impressive plot with a south-facing garden, located in one of Lymington’s most desirable areas south of the high street, close to Woodside Park. The property also features a substantial detached garage with workshop, ample parking, and offers excellent potential for further enhancement.

Fairfield Close is a superbly positioned no through road composed of nicely spaced individually designed houses. The property offers a particularly large plot, particularly when one considers its proximity to the town centre and Woodside Park. Despite its central location, the property is private, quiet and highly convenient. Lymington is a vibrant market town with an excellent range of boutique shops, cafes and restaurants. There is superb recreational outside space at Woodside Park nearby beyond which lie beautiful walks along the Sea Wall. The town is renowned for its sailing community which is serviced by two sailing clubs and excellent marinas.

This spacious chalet bungalow offers a generous layout, providing accommodation for four bedrooms in total. Extending to approximately 2,200 square feet, the property presents significant potential for modernisation and refurbishment. The home is entered via an enclosed porch, leading to a welcoming reception hall with stairs to the first floor. From the hall, access is provided to the principal reception areas, including a dining room, a large living room, and a conservatory. The property also benefits from a separate kitchen with an adjoining utility room. The ground floor is completed by a bright and airy dual aspect double bedroom with a south-facing aspect, a second double bedroom, and a modern shower room. Upstairs, a central landing leads to two further double bedrooms, a family shower room and an ensuite to the principal bedroom. The property offers ample storage throughout.

The property is approached via a block-paved driveway that offers ample parking and turning space and a garage with workshop. The main garden lies to the front of the property, predominantly laid to lawn and enjoys a sunny south-facing aspect.  To the rear, there is a garden accessed via an archway and provides pedestrian access to the garage, workshop and greenhouse. The garden offers a good degree of privacy. 

Services

Tenure: Freehold

Council Tax: G

EPC: D Current: 67 Potential: 81

Property Construction: Brick elevations & tile roof

Utilities: Mains gas, electric, water & drainage

Heating: Gas central heating

Broadband: Superfast broadband with download speeds of up to 80mps available at this property (ofcom)

Parking: Private driveway and garage

Spencers of the New Forest

Spencers of the New Forest

74 High Street
Lymington
Hampshire
SO41 9AL

+44 (0)1590 674222

Reference: 29571242

Request a viewing for this property

Simply fill out the form below or alternatively call us on 020 7839 0888

* Mandatory fields