2 Bedroom Apartment
£275,000
Hillcroft Close, Lymington, SO41

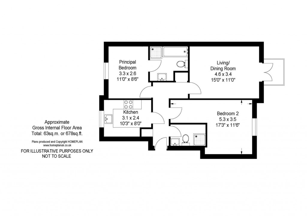
Floorplans For Hillcroft Close, Lymington, SO41
EPC Graph for Hillcroft Close, Lymington, SO41

Description


An immaculate and modern two-bedroom, two-bathroom first floor apartment with two private parking spaces and a sunny balcony. Lift and stairs give easy access to the property. The apartment is situated within a short flat walk of the high street.

The property is situated just a short walk from the extensive amenities afforded by the famous Georgian market town of Lymington, renowned for its picturesque High Street, quay and Saturday Charter Market. The Lymington River providing a haven for sailors with its excellent facilities and two deep-water marinas. The New Forest National Park is within close proximity, the Forest offers endless walks, cycle trails and out riding as well as beautiful open countryside.

Built in 2003 with well-designed living areas and good storage provision as well as two bathrooms incorporating a bath and two showers. The entrance hallway has two separate storage cupboards, one housing the pressurised hot water cylinder. The delightful living room features glazed double doors to the balcony and allows room for dining furniture. The modern fitted kitchen includes a new Smeg double oven, Neff gas hob, integral washing machine, dishwasher and fridge/freezer.

The principal bedroom has a large en-suite bathroom with vanity unit, separate shower cubicle and wc. Bedroom two is also a double room with adjacent shower room, vanity unit and wc. This shower room is accessed from the hallway. There is a Potterton gas boiler situated in a corner cupboard in the kitchen. Outside the property benefits from private parking for two vehicles, well-tended communal gardens and secure bike and bin stores.

There are well-tended communal gardens and pathways throughout this private development. The apartment has two private parking spaces positioned directly below the apartment and access to a secure bike store. Pathways lead around the building and to New Street. 

Services

Tenure: Leasehold

Lease Term: 155 years from 1 April 2003

Lease Term Remaining: 133 years

Annual Service Charge: £1,831.08

Annual Ground Rent: £250.00

Council Tax: D

Energy Performance Rating: B Current: 82 Potential: 83

Utility Supplies: Mains electric, gas, water and drainage

Heating: Gas central heating

Broadband: FFTC - Fibre-optic cable to the cabinet, then to the property. Superfast Broadband with download speeds of up to 80 Mbps are available at the property (Ofcom).

Pets: At the discretion of the Management Company

Holiday Lets: No

Long Term Lets: Yes

Parking: Two allocated spaces within communal car park

Agents Note: The property can be offered furnished or unfurnished subject to further negotiation.

Spencers of the New Forest

Spencers of the New Forest

74 High Street
Lymington
Hampshire
SO41 9AL

+44 (0)1590 674222

Reference: 29566877

Request a viewing for this property

Simply fill out the form below or alternatively call us on 020 7839 0888

* Mandatory fields