3 Bedroom Semi-Detached
£950,000
Broadlands Road, Brockenhurst, SO42

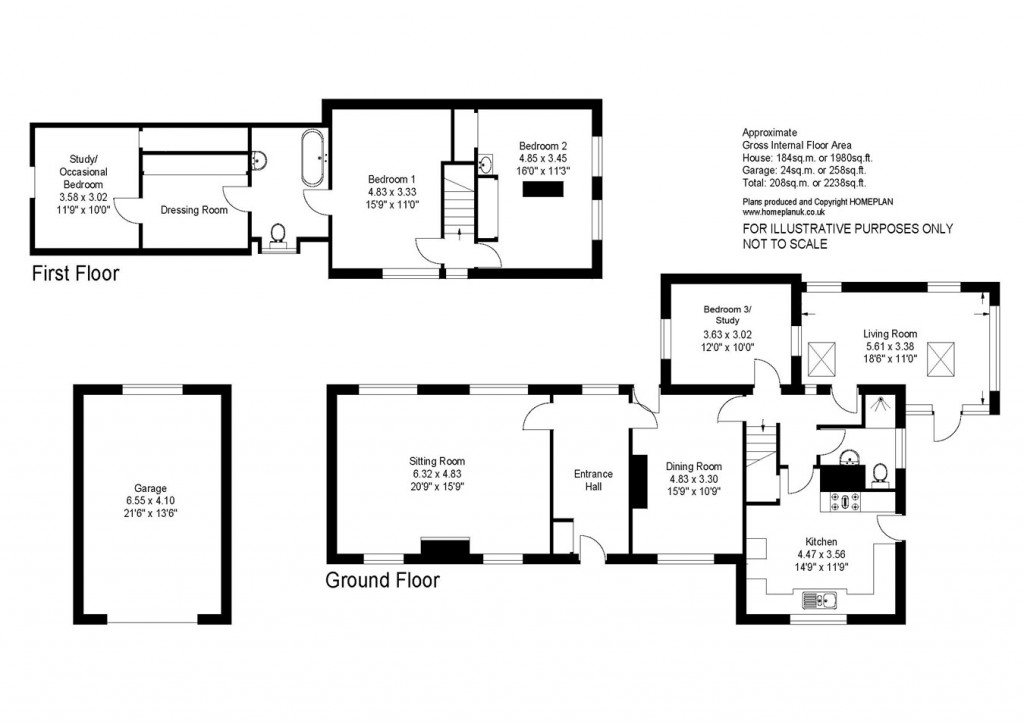
Floorplans For Broadlands Road, Brockenhurst, SO42
EPC Graph for Broadlands Road, Brockenhurst, SO42

Description


A charming period cottage set on this desirable quiet forest road within the heart of the village of Brockenhurst with New Forest ponies roaming along the lane. Thought to have been built in the 1880's, this unique and substantial three bedroom semi-detached residence has been created from a former coach house and stable block which have been sympathetically converted into two residential dwellings.

The property benefits from versatile accommodation extending to nearly 2000 sq ft with further benefits including a detached garage, and pretty landscaped gardens.

The property is located in a rarely available and highly sought after location in a private no through lane. The open forest is accessed via a footpath leading down into North Weirs or at the start of the lane, where the forest lies opposite.

The village offers a mainline railway station with direct links to London Waterloo in approximately 90 minutes and a good local community of shops and restaurants. The Georgian coastal town of Lymington is only 4 miles to the south with its famous Saturday country market, extensive yachting facilities and ferry service to the Isle of Wight. To the north is the village of Lyndhurst and Junction 1 of the M27 motorway which links to the M3, giving access to London.

This pretty painted cottage is set under tiled elevations offering many period features befitting the original coach house and stables belonging to Meadcrest House. The property offers spacious, light and well configured accommodation throughout. A gated path from the lane leads to the centrally set front door leading into an entrance lobby with woodblock flooring, built in coat storage and rear aspect window.

The impressive double aspect sitting room is set to one side of the hallway which features a recessed storage cupboard, attractive wood block flooring and a central fireplace set within an attractive stone surround.

Across the hallway, a dining room offers front aspect windows and recess to alcove with built in storage and shelving with a door leading out to the rear shared courtyard. Doors from here lead to an inner hallway with stairs leading up to the first floor and provides access to the remainder of the accommodation including a ground floor bedroom, ideal as an occasional guest room and which can double up as a study and has access to a good sized loft void. This room is supported by the ground floor shower room.

The living room is set at the far end of the property which has been extended offering extensive glazing overlooking the main gardens with glazed door leading out to the rear terrace. Two rooflights allow for additional light.

The dual aspect kitchen/breakfast room features windows overlooking the front gardens and a glazed door opens out onto the rear terrace. The kitchen area is fitted with a range of good quality wooden wall and base units with complimentary work surfaces and tiled splashbacks. There is space for appliances including a range cooker, fridge freezer, washing machine and dishwasher. An understairs cupboard offers additional storage.

The first floor landing has an elevated window overlooking the front with doors leading to two bedrooms. The principal bedroom offers a generous bedroom area with recessed built in cupboard to the alcove. The room leads in turn through to an ensuite bathroom which in turn opens into the dressing room with built in clothes storage cupboards.

From here a further door leads to an office which can be used as an occasional bedroom or nursery if required with large side window overlooking the garage and parking area and access to loft storage area. Originally the granary store, this area would have been used to lower sacks of grain down to outside.

Across the landing, the second double bedroom offers another good sized room with vanity wash basin and built in wardrobes with side aspect windows and further loft access.

The gardens are a real feature of the property benefiting from a sense of privacy and seclusion in this quiet spot. The front garden frames the main entrance into the property with a central path dissecting the areas of garden with an array of planted flower beds with a mix of planting and shrubs creating colour and interest in this pretty cottage garden.

A path links through to the main rear garden set to one side which is predominantly laid to level lawn and enclosed with fencing. A selection of shrubs and young trees provide some screening and shade. A terrace immediately abuts the property and a further seating area is set at the rear of the garden with a newly erected summer house on the other side with seating in front and a further shed completes the garden.

The detached garage is positioned off the drive to the side, which is larger than average, allowing for a bit of a workshop area and has a loft storage area above. A gravelled area allows for off street parking.

Additional Information: 

Tenure: Freehold

Council Tax Band: E

Energy Performance Certificate: E Current: 48 Potential: 78

Services: Mains gas, electric, water and drainage

Gas central heating

Construction Type: Brick & tiled roof.

Flood Risk: Very Low

Broadband: Fibre

Ultrafast broadband with speeds of up to 1800 Mbps is available at the property (Ofcom).

Mobile Coverage: No known issues, please contact your provider for further clarity.

Agents Note: The neighbour has right of way across the driveway to access their property to the rear.

Spencers of the New Forest

Spencers of the New Forest

56 Brookley Road
Brockenhurst
Hampshire
SO42 7RA

+44 (0)1590 622551

Reference: 29560891

Request a viewing for this property

Simply fill out the form below or alternatively call us on 020 7839 0888

* Mandatory fields