3 Bedroom Terraced House
£165,000
Woodview, Chilcompton, Radstock, Somerset

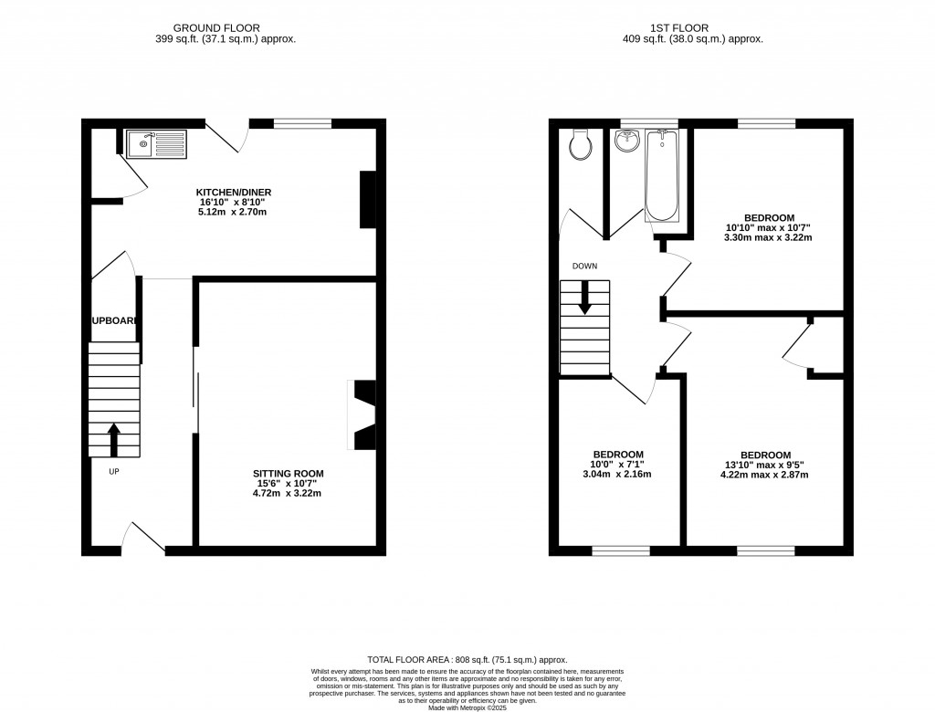
Floorplans For Woodview, Chilcompton, Radstock, Somerset

Description


CASH BUYERS ONLY. A three bedroom mid terrace family home in need of modernisation and updating with gardens to the front and rear. In brief the accommodation comprises an entrance hall with stairs rising to the first floor, sitting room, kitchen/diner with a sink unit and understairs storage cupboard. There is a door from here to the rear courtyard. To the first floor there are three bedrooms and a bathroom. The property is being offered for sale with no onward chain. 

Cooper & Tanner

Cooper & Tanner

Reference: 29544884

Request a viewing for this property

Simply fill out the form below or alternatively call us on 020 7839 0888

* Mandatory fields