4 Bedroom Plot
£275,000
Charlton Road, Holcombe, Radstock, Somerset

Floorplans For Charlton Road, Holcombe, Radstock, Somerset Floorplans For Charlton Road, Holcombe, Radstock, Somerset

Description


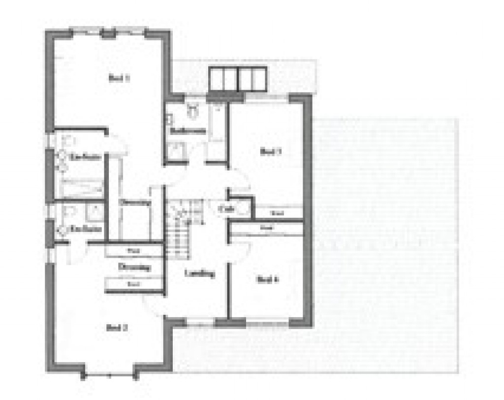
An individual building plot located on the outskirts of Holcombe, a popular Somerset village with planning permission granted for a detached family home of approximately 300 sq meters with an attached double garage, parking and enclosed gardens. Planning reference number 2025/0406/FUL. The accommodation in brief comprises an entrance reception hall, superb open plan kitchen/dining/living room, study, snug, downstairs WC, utility room and a pantry. To the first floor there is the master bedroom with dressing room and en-suite, bedroom two with dressing area and en-suite, two further double bedrooms and a family bathroom. Please enquire for further details.

Cooper & Tanner

Cooper & Tanner

Reference: 29539152

Request a viewing for this property

Simply fill out the form below or alternatively call us on 020 7839 0888

* Mandatory fields