4 Bedroom House (unspecified)
£465,000
Three Hill View, Glastonbury, Somerset

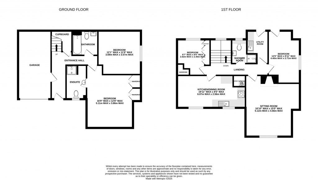
Floorplans For Three Hill View, Glastonbury, Somerset
EPC Graph for Three Hill View, Glastonbury, Somerset}

Description


Enjoying far-reaching views, this well-presented detached home offers flexible living space, complemented by an attractive landscaped rear garden and off-road parking. The ground floor accommodation includes an integral garage, bathroom, under-stair storage, and two generous double bedrooms, one of which features built-in wardrobes and an en-suite shower room. Upstairs, you'll find two additional bedrooms, a utility room, shower room, and a spacious kitchen/diner alongside a sitting room, with both reception rooms offering stunning views. The rear garden boasts two patios, a well-kept lawn framed by mature trees and planting, and countryside views, with the added benefit of gated pedestrian access.

Cooper & Tanner

Cooper & Tanner

41 High Street
Glastonbury
Somerset
BA6 9DS

+44 (0)1458 831077

Reference: 29531801

Request a viewing for this property

Simply fill out the form below or alternatively call us on 020 7839 0888

* Mandatory fields