3 Bedroom Residential Development
£150,000
Dean, Shepton Mallet, Somerset

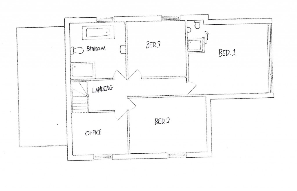
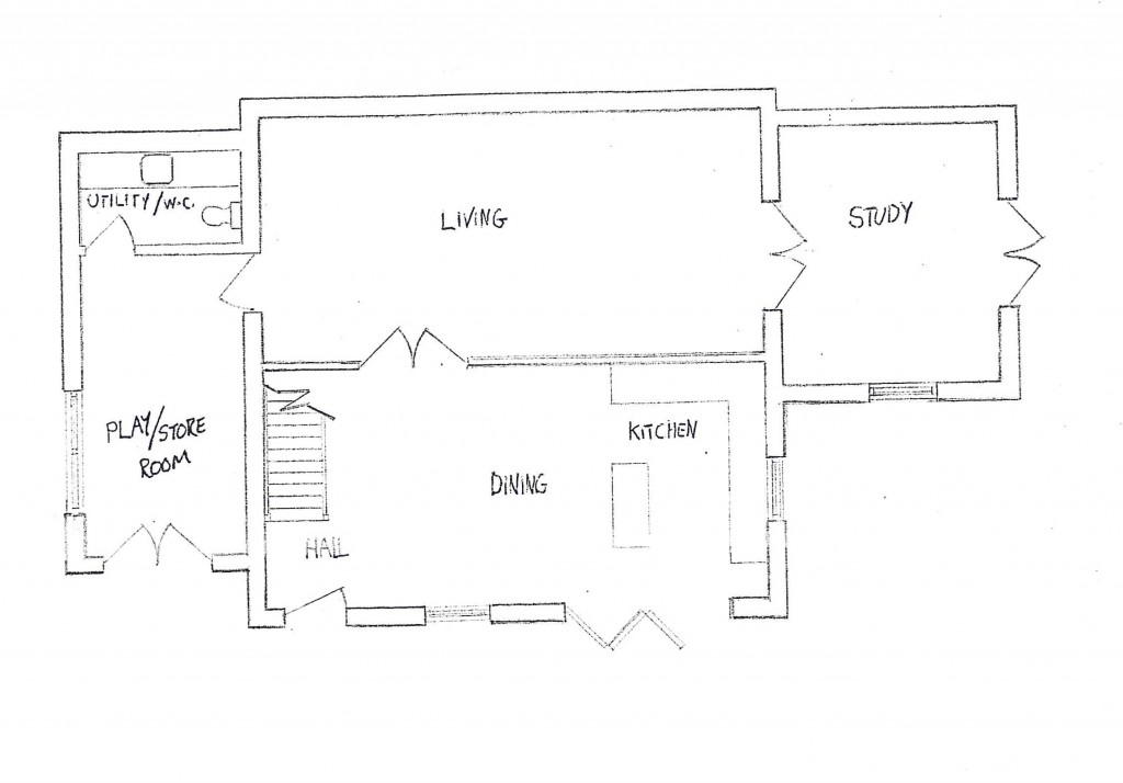
Floorplans For Dean, Shepton Mallet, Somerset Floorplans For Dean, Shepton Mallet, Somerset

Description


Description

The Barn offers the opportunity to create a spacious, detached family home located in the rural hamlet of Dean between Frome and Shepton Mallet. The Barn benefits from a super location with access to the adjoining countryside and walks via a network of footpaths and bridleway, yet has excellent road access to the A361 making commuting straight forward.

Planning consent was granted on 31st July 2015 (Planning reference 2015/1227/FUL) to convert the barn and provide an extension to the existing footprint. Works have commenced on site which include works to the external walls, underpinning and the laying of the raft foundations all of which has been signed off by the Building Inspector.

The proposed accommodation is arranged over two floors and comprises an open plan kitchen/dining room, sitting room, study, playroom and utility room on the ground floor. The first floor will offer three bedrooms, one with an ensuite, an office and family bathroom. The master bedroom has been designed with full length windows at the far end which will make the most of the surrounding rural aspect.

Outside

To the side of the barn lies an elevated garden area which is currently laid to lawn and will provide a private space for the house. There is space to the front of the barn to provide off road parking.

The mobile home will stay on site but please be aware that consent has not been granted for it to be occupied.

Completion

Completion has been set for Thursday 18th December 2025 or earlier by arrangement.

Local Council

Somerset Council (Mendip Area)

Services

Mains electricity has been connected to the barn. Mains water runs to the boundary of the property. A septic tank has been installed in the grounds but will require commissioning.

Viewing

At any reasonable time on foot with a set of the sale details.

Solicitor:  Chubb Bulleid, Wells, Laura Maden acting Tel: 01749 836100

Registering to bid and Administration fee

Cooper and Tanner require all bidders who wish to bid at our Auction to register beforehand, whether you are intending on bidding in the room, by proxy or online. As part of the registration process, you will be asked to provide card details in order that the Buyer’s Administration Fee of £1395 inc VAT can be paid if you are successful. A week before the auction a hold will be placed on your account for this sum, which will then be released if you are unsuccessful. This fee will only be taken if you are the successful buyer. The fee is retained by Cooper and Tanner and does not form part of your deposit or completion settlement. Please also be aware that the Buyer’s Administration fee is payable per lot purchased. If you are successful in purchasing more than one lot, we will contact you following the auction to take subsequent payments for additional lots bought. All checks required by current anti-money laundering legislation must be satisfactorily completed, as part of the registration process before prior approval to bid will be granted; this will include providing proof of funds.

Deposit

Successful bidders will be required to pay to the Cooper and Tanner Client Account the deposit of 10% of the purchase price within 24 hours of the auction. The account details will be provided to the successful bidder on conclusion of the auction. Once funds are cleared, they will be transferred on to the account of the solicitor acting for the seller. Please ensure that funds are in an account suitable to be able to make an Electronic Transfer from.

Fees

Potential buyers should be aware that there may be additional fees payable to the Vendor’s solicitor on completion of the sale, details of which will be contained within the auction pack for each lot. At the launch of the property onto the market this information is not always available and so interested parties must refer to the auction pack and satisfy their enquiries.

auction-property,  november-auction 

Cooper & Tanner

Cooper & Tanner

6 The Bridge
Frome
Somerset
BA11 1AR

+44 (0)1373 455060

Reference: 29530051

Request a viewing for this property

Simply fill out the form below or alternatively call us on 020 7839 0888

* Mandatory fields