3 Bedroom Bungalow
£280,000
Lot A - Park Farm Dairy, Pitney, Langport, Somerset

Description


Description

For Sale by Auction on Thursday 30th October 2025 at 12 midday at The Royal Bath and West Showground and via Livestream.

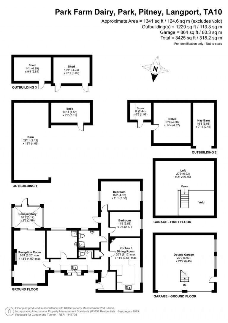
Park Farm Dairy is an attractively located agricultural property, which is situated within idyllic surroundings and offered for sale in three separate lots. The property comprises a bungalow, range of outbuildings, together with 13.66 acres of pastureland. Previously operated as a small holding, to which it is extremely well-suited. The land comprises a slightly acidic loam type, which is enclosed by a mixture of hedgerows, stock-proof fencing and ditches. The soil is classified as Grade II/III according to the DEFRA land classification map. The adaptability of the property is complemented by the outbuildings, which do require replacement and repair in part, but offer potential for either continued agricultural use or alternative uses e.g. equestrian etc. subject to the necessary planning consents.

Lot A – Guide Price: £280,000 to £320,000

Dwelling

A well-proportioned bungalow constructed of cavity wall elevations with blue lias stone and brick outer skin. The dwelling is approached from the highway via a tarmacadam driveway leading to an off-road parking area. The dwelling requires a programme of modernisation and improvement throughout and once upgraded, would provide a comfortable family home. With reference to the floor plan enclosed, the internal accommodation provides three well-proportioned bedrooms and ample living areas. The dwelling is principally surrounded by gardens laid to lawn and interspersed with trees, numerous outbuildings and patio area.

Outbuildings

1. Garage/workshop – Extending 864ft² over the ground floor and concrete first floor mezzanine. Constructed of concrete block/stone elevations including roller shutter doors. Asbestos clad roof.

2. Other outbuildings – in addition to the main outbuilding is a range of timber framed structures of ad hoc construction. These buildings provide accommodation for livestock, fodder and machinery and have a gross floor area of circa 1,220ft²

Lot B – Guide Price: £80,000 to £100,000

A single enclosure of level pastureland extending to approximately 9.61 acres (3.89 hectares) and enclosed by natural hedges, ditches and stock-proof fencing. Located to the southern boundary and throughout the plot is a range of semi-dilapidated outbuildings constructed of principally timber frame with either open or clad elevations under cement fibre/asbestos/clad roofs. Natural water supply.

What3words: request.pocketed.raft

Lot C – Guide Price: £15,000 to £20,000

Level pastureland extending to 4.05 acres (1.64 hectares). Held within a single enclosure and accessed via a right of way over Pitney Moor Drove leading from the Council highway. Natural water supply.

What3words: closes.reception.stood

Fixture and Fittings

Fixtures and fittings which are currently on site may not be included within the sale and may be removed prior to completion. A fixtures and fittings schedule will be included within the auction legal pack.

Other Schemes

The land is not subject to any environmental or countryside stewardship schemes.

Drainage Rates

Lot A - None.

Lot B – None.

Lot C – £15.62 per annum.

Footpaths and Rights of Way

Not subject to any public footpaths. Further details of any other rights of way (if applicable) will be contained within the auction legal pack.

Flooding

Lot A – Flood Zone 1

Lot B – Flood Zone 1

Lot C – Flood Zone 3

Designations

Not situated within an AONB, Nitrate Vulnerable Zone (NVZ) or SSSI. The Property is not Listed.

Uplift / overage clause

None.

Services

Lot A - We understand mains electricity is connected. Private water supply via a well/borehole. Private drainage via septic tank. Potential purchasers are advised to make their own enquiries into the adequacy and availability of any services. Further information contained within the auction leal pack.

Lots B and C – No mains services connected.

Solicitors

Chubb Bulleid Solicitors, Wells

Telephone: 01749 836 100

Laura Maden acting

Completion

Completion has been set for the 27th November 2025.

Registering to bid and Administration fee

Cooper and Tanner require all bidders who wish to bid at our Auction to register beforehand, whether you are intending on bidding in the room, by proxy or online. As part of the registration process, you will be asked to provide card details in order that the Buyer’s Administration Fee of £1395 inc VAT can be paid if you are successful. A week before the auction a hold will be placed on your account for this sum, which will then be released if you are unsuccessful. This fee will only be taken if you are the successful buyer. The fee is retained by Cooper and Tanner and does not form part of your deposit or completion settlement. Please also be aware that the Buyer’s Administration fee is payable per lot purchased and applicable to all pre-auction sales. If you are successful in purchasing more than one lot, we will contact you following the auction to take subsequent payments for additional lots bought. All checks required by current anti-money laundering legislation must be satisfactorily completed, as part of the registration process before prior approval to bid will be granted; this will include providing proof of funds.

Fees

Potential buyers should be aware that there may be additional fees payable to the Vendor’s solicitor on completion of the sale, details of which will be contained within the auction pack for each lot. At the launch of the property onto the market this information is not always available and so interested parties must refer to the auction pack and satisfy their own enquiries.

Deposit

Successful bidders will be required to pay to the Cooper and Tanner Client Account the deposit of 10% of the purchase price within 24 hours of the auction. The account details will be provided to the successful bidder on conclusion of the auction. Once funds are cleared, they will be transferred on to the account of the solicitor acting for the seller. Please ensure that funds are in an account suitable to be able to make an Electronic Transfer from.

Viewing

Lots A and B - To book on to one of the scheduled viewing dates, please contact Cooper and Tanner, Glastonbury – 01458 834 288 (Option 2).

Lot C - At any reasonable time on foot and during daylight hours with a set of the sale details.

Local Council: Somerset Council – Telephone: 0300 123 2224.

Council Tax Band: E.

Heating: None.

Tenure: Freehold with vacant possession.

Website tags: auction-property, october-auction

Cooper & Tanner

Cooper & Tanner

41 High Street
Glastonbury
Somerset
BA6 9DS

+44 (0)1458 831077

Reference: 29504353

Request a viewing for this property

Simply fill out the form below or alternatively call us on 020 7839 0888

* Mandatory fields