4 Bedroom Detached
£750,000
Buldowne Walk, Sway, Lymington, SO41

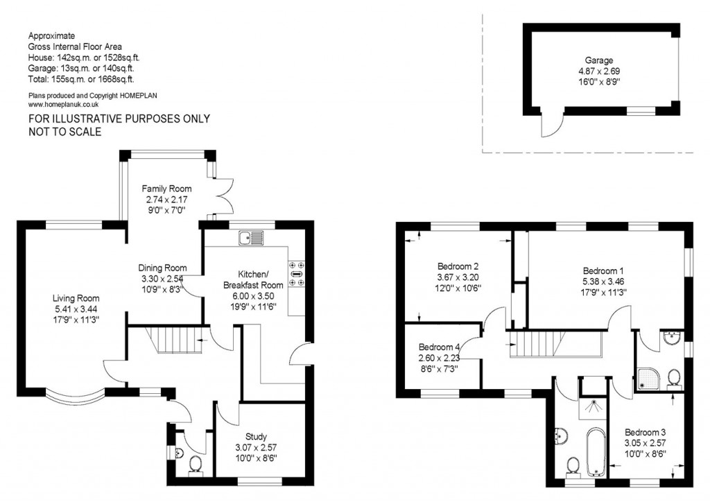
Floorplans For Buldowne Walk, Sway, Lymington, SO41
EPC Graph for Buldowne Walk, Sway, Lymington, SO41

Description


This beautifully presented, Georgian style four-bedroom detached home is situated in the sought-after village of Sway, within the New Forest National Park. Offering spacious and well-designed accommodation, the property is ideal for modern family living. The property further benefits from a garage, off road parking and private rear garden.

The property is located in a highly desirable cul-de-sac, within easy reach of local amenities and the open forest. The village offers a useful mainline rail connection to Southampton and London Waterloo (approximately 100 minutes) together with a range of shops, a thriving community, well regarded primary school, church, doctor’s surgery and the Jubilee fields offering fantastic recreation facilities including tennis courts, a football pitch and a cricket ground all set around a pavilion clubhouse.

The Georgian market town of Lymington, famed for its river, marinas, yacht clubs and coastline, is within a 4 mile drive over the forest. The neighbouring New Forest village of Brockenhurst (4 miles), again with a mainline rail connection, offers further leisure, shopping and educational amenities, as well as a popular 18 hole golf course.

The property offers a well configured and flexible layout throughout befitting the needs of a modern day family.

The front door opens into a welcoming entrance hall with staircase. Attractive wooden flooring ties the living accommodation together. The sitting room has a feature bay window to the front, and large portrait window looking into the rear garden which gives the room a nice bright, open feeling. The sitting room flows into the dining room, which has triple aspect windows and French doors opening onto the rear garden. The kitchen/breakfast room comprises a range of cabinets, quartz worktop, integrated microwave, dishwasher, full-sized dual ovens, five ring gas hob with extractor fan over, and a storage/pantry area and utility room with space for a washing machine and tumble dryer. The American style fridge freezer will remain with the property. An office/ study with a window to the front elevation offers the perfect space for working from home, and there is a useful downstairs w/c.

Upstairs, there are four bedrooms, all immaculately presented. The principal bedroom benefits from an en suite shower room. The three additional bedrooms are well-proportioned and are served by a modern family bathroom tiled to full height comprising stand-alone bath tub, large walk-in shower, wash basin, w/c, heated towel rail and window.

To the front of the property is a drive which can accommodate several vehicles. To the rear of the home is an adorable characterful "secret garden" which gives the home a magical feel. The walled rear garden is laid to lawn with a good-sized patio area ideal for BBQs and al fresco entertaining.

A gate leads to the up-and-over garage door which is located in a block at the rear of the garden and can be easily accessed directly from the garden via a wooden side door.

Additional Information: 

Tenure: Freehold

Council Tax Band: F

Energy Performance Rating: C Current: 74 Potential: 84

Services: Mains gas, electric, water and drainage

Gas central heating

Property Construction: Brick and tile.

Flood Risk: Very low

Broadband: ADSL Copper-based phone landline, Mobile - via 4G network to provide internet to the property

Ultrafast broadband with speeds of up to 1000 Mbps is available at the property (Ofcom).

Mobile Signal/Coverage: No known issues, buyer to check with their provider for further clarity.

Spencers of the New Forest

Spencers of the New Forest

56 Brookley Road
Brockenhurst
Hampshire
SO42 7RA

+44 (0)1590 622551

Reference: 29478599

Request a viewing for this property

Simply fill out the form below or alternatively call us on 020 7839 0888

* Mandatory fields