Plot
£285,000
Street, Somerset

Description


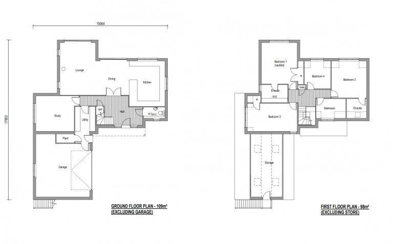
Description - An exciting opportunity to acquire a building plot with consent for the erection of an impressive detached four bedroom home designed with open kitchen and living space, 2 x ensuite bedrooms and garage. Situated on the outskirts of Street within proximity to Millfield School campus.

Initial works on site have started and the plot has been defined and fenced, as well as construction of a bat shed in accordance with the planning requirements. The vendor has also brought services to the plot.

Shared access will be taken via right of way leading off Slugg Hill with an obligation upon all users for shared maintenance.

Plot size of approximately 0.30 acres to include a good sized garden, parking area and small mature tree copse. The proposed garage benefits a first floor storage space indicated on the plans, providing further 18sqm.

The planning submission proposed a mix of natural local stone and timber cladding set under double roman clay tiles.

A restrictive covenant will prevent the ridge height being higher and prevent the footprint moving further south and/or east from existing plans. There will be no restrictions on other directions or design.

Parties must satisfy themselves with regard to potential end values (GDV) but our local residential office at Street is contactable for general enquiries.

Tenure - Freehold, vacant possession upon completion.

Planning Information - Consent was granted March 2025, subject to conditions, under application number 2024/1123/FUL for Erection of 2no. 4 bed detached dwellings with integral garages. To note, the Vendor is retaining Plot 1.

Situated within Somerset Council (former Mendip area) and planning information can be obtained via the planning portal. Or additional information is available from the selling agents. Interested parties must satisfy themselves with regard to any planning investigations, consent and conditions.

Services - The water supply (32mm pipe) has been brought to the roadside and is expected to be connected by Bristol Water June 2026. Electricity is expected to be connected April 2026. The vendor will be installing, circa September 2026, a sewage treatment plant that will have sufficient capacity to serve this plot and the adjacent two plots and it will become a 1/3rd shared private drainage system. Future management costs 1/3rd split between connected properties. Further information from the agents but purchasers to satisfy themselves about location and capacity of services.

Method of Sale - For sale by Private Treaty. Offers are invited on a conditional or unconditional basis.

Community Infrastructure Levy - Somerset Council does not operate CIL the in the former Mendip Area.

Viewings - Strictly by prior appointment only.

Location - Set in an excellent position off Slugg Hill, which leads off Somerton Road on the outskirts of Street, Somerset. Within close proximity to Millfield School campus and bordered by farm land and tree planting.

What3Words location ///bolsters.lentil.returns

Development-Property

Cooper & Tanner

Cooper & Tanner

6 The Bridge
Frome
Somerset
BA11 1AR

+44 (0)1373 455060

Reference: 29428753

Request a viewing for this property

Simply fill out the form below or alternatively call us on 020 7839 0888

* Mandatory fields