2 Bedroom Town House
£430,000
Ainslie Place, Lymington, Lymington, SO41

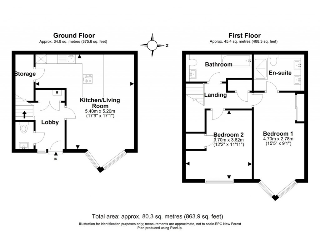
Floorplans For Ainslie Place, Lymington, Lymington, SO41
EPC Graph for Ainslie Place, Lymington, Lymington, SO41

Description


This charming town house with river views is beautifully presented with accommodation over two floors featuring two spacious double bedrooms. Its modern, open plan living design offers a delightful atmosphere complemented by an outdoor patio area and secure underground parking. Situated just a short stroll away from the quay, marina, and Lymington High Street, this property provides convenience and accessibility. Moreover, it is available without any onward chain. Energy Performance Rating: B

SITUATION

The house is conveniently located within a short walking distance of the charming market town of Lymington, renowned for its Saturday market and picturesque harbour. Lymington offers a variety of independent shops, including upscale designer boutiques, and is surrounded by the breathtaking natural landscapes of the New Forest National Park. Heading north, you'll find the quaint New Forest village of Lyndhurst and Junction 1 of the M27, providing easy access to the M3 and onward travel to London. Additionally, there is a branch line train connection to Brockenhurst railway station, offering a frequent half-hourly service to London Waterloo with an approximate travel time of 90 minutes.

THE PROPERTY

Upon entering the property, you are greeted by a bright and spacious hallway. From here, you will find doors leading to a modern cloakroom with a white suite, a double built-in storage cupboard housing the boiler, and space and plumbing for a washing machine. The property features an open plan living room with floor to ceiling windows and seamlessly flows into the kitchen/dining area, creating an ideal space for entertaining. The kitchen is equipped with a contemporary range of soft-close base cupboards and drawers, complemented by matching eye-level units with under lights. It also features a breakfast bar, a stainless steel one and a quarter bowl drainer sink unit with a mixer tap, a stainless steel Siemens oven with a four-ring induction hob and an extractor hood. There are further integrated Siemens appliances, including a dishwasher, microwave oven, and fridge/freezer, further enhancing the kitchen's functionality. Additionally, there is a convenient pantry/cupboard that provides extra storage space.

A staircase from the hallway leads to the first floor, where you will find two spacious double bedrooms, both of which boast fitted wardrobes. The main bedroom benefits from a generously sized modern en-suite shower room, which features two luxurious white Villeroy & Boch basins with matching vanity units and a walk-in Aqualisa shower. The main bedroom also offers a full-height bay window that showcases breathtaking views of the river and the Isle of Wight. Bedroom two is served by a family bathroom, complete with a Villeroy & Boch suite and an Aqualisa shower over the bath. Underfloor heating throughout the property, double glazing, and an air filtration system are additional features that contribute to the property's comfort and convenience. Moreover, there is a remaining NHBC guarantee in place until September 2027.

GROUNDS AND GARDENS

To the front of the property, there is a private terrace area facing east, providing ample room for seating and entertaining while offering breathtaking views of the River and the Isle of Wight. A set of steps leads down to the Lymington River, where you can discover the Lymington Rowing Club. Within the Lymington Shores complex, there is an appealing pathway and gated wooden play areas, along with a spacious green area. Conveniently located on the second floor, adjacent to the lift/stairs, you will find secure underground parking for one car (space number 47), as well as bike storage facilities and an abundance of visitor parking spaces.

ADDITIONAL INFORMATION

This apartment has its own gas (including heating), electricity and water supplies with separate meters for each.

Leasehold - 125 years from January 2012

Ground Rent £137.50 every 6 months / Maintenance Charge £793.31 every 6 months

NHBC Guarantee in place until September 2027

Council Tax: Band E

EPC: B - Current 83, Potential 83

Superfast Broadband with speeds of up to 80 Mbps is available at the property (Ofcom)

Spencers of the New Forest

Spencers of the New Forest

74 High Street
Lymington
Hampshire
SO41 9AL

+44 (0)1590 674222

Reference: 29397505

Request a viewing for this property

Simply fill out the form below or alternatively call us on 020 7839 0888

* Mandatory fields