3 Bedroom Detached House
£295,000
Mells

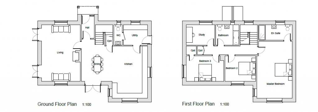
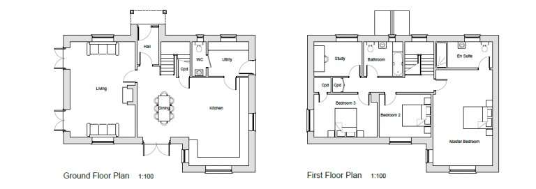
Floorplans For Mells Floorplans For Mells Floorplans For Mells Floorplans For Mells

Description


An opportunity to purchase land with planning permission to build a three/four bedroom detached house in an exceptionally popular part of Mells.

Application No: 2024/0620/FUL. Full planning permission has been granted to build an attractive, detached home, with parking for three cars and a private and enclosed garden. 

The accommodation is to include a welcoming entrance hall, a living room with two sets of French doors leading out to the garden, an impressive kitchen/ dining room, a utility room and a downstairs WC. 

On the first floor there is an impressive master bedroom with en-suite, two further bedrooms, a study and a family bathroom.

Agents note

We have been informed that there will be restrictive covenants put in place to ensure the property is built and maintained in line with the planning consent. This will include a restriction on alterations/additions and will require the use of vernacular building materials during construction to ensure the property is in keeping with the style and aesthetic of the village.

LOCATION

Mells continues to be one of the most sought-after villages in the area. The village offers a junior school, a public house of excellent reputation and local Post Office/shop. The country house hotel of Babington House is just two miles, and the market town of Frome is within a short drive. Railway connections at Frome and Westbury for London Paddington and Warminster and Gillingham for London Waterloo. Communication links are excellent with Bath and Bristol within commuting distance and the A303, A36 & M4 & M5 all within easy reach. The beautiful Somerset countryside provides a variety of leisure pursuits.

Development-Property

Cooper & Tanner

Cooper & Tanner

6 The Bridge
Frome
Somerset
BA11 1AR

+44 (0)1373 455060

Reference: 29378336

Request a viewing for this property

Simply fill out the form below or alternatively call us on 020 7839 0888

* Mandatory fields