4 Bedroom Detached
£850,000
Tiptoe Road, Wootton, BH25

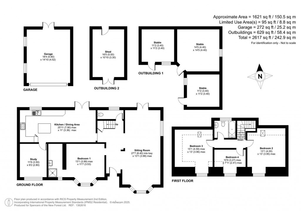
Floorplans For Tiptoe Road, Wootton, BH25
EPC Graph for Tiptoe Road, Wootton, BH25

Description


A fantastic opportunity to acquire this spacious four bedroom detached chalet style home, situated on a generous plot including a holding paddock and a selection of useful outbuildings. Located in a semi-rural forest village, just moments from the open forest. Offered to the market with no onward chain!

Tiptoe is a small forest village with two churches, a school, an associated pre-school and a pub. The forest is easily accessible and brings you onto Boundway, one of the most attractive areas of the forest with far reaching views and stunning walks. Some two miles west is the village of Sway offering railway links to London and the south coast, in addition to a variety of local amenities.

The market town of Lymington, famous for its internationally renowned sailing facilities and marinas along with its Saturday market, is approximately 5 miles south west of Wootton. The property is conveniently situated within a short drive of the A35 and is within easy reach of motorways and rail links together with both Bournemouth and Southampton International Airports, this making it an ideal location for those with a requirement to commute.

A spacious hallway provides access into the open plan sitting room with French doors onto the rear garden with views of the holding paddock beyond and a bay window to the front aspect with window seat below, allowing for ample light.

On the other side of the hallway is a door through to the kitchen/dining area, also benefitting from French doors out to the rear garden. The kitchen comprises a wide range of base and wall units with attractive Granite worktops over and a central island offering further storage and worktop space. Integrated appliances include a dishwasher, full height fridge/freezer and a Range Cooker with six ring gas hob. The good sized study sits just off of the kitchen with front aspects.

The principal bedroom suite is situated on the ground floor with a bay window to the front and spacious walk in en suite shower room/dressing room. A cloakroom sits to the side of the stairs featuring a WC and wash basin.

Stairs rise to the first floor where there are three further bedrooms and a family bathroom featuring a bath with shower over, WC and wash basin. Bedrooms two and three are generous doubles with windows to the front aspect with views of neighbouring paddocks and Velux windows to the rear. The fourth bedroom is a single room, also with a front aspect window.

An in and out driveway spans the entire width of the property allowing for ample off road parking and gives access to the detached garage. To the rear of the property there is a large brick built outhouse which currently houses the white goods and provides additional storage, or could be converted to a home gym/home office.

The rear garden is primarily laid to lawn with some small areas of paving. A picket fence divides the garden to the holding paddock where the wooden triple stable block is located, benefitting from both power and water. Bordered by both fencing and mature hedging, the grounds are both tranquil and private.

Additional Information:

Tenure: Freehold

Council Tax Band: E

Energy Performance Rating: D Current: 67 Potential: 80

Services: Mains gas, electricity and water

Drainage: Septic tank

Heating: Gas central heating

Property construction: Standard Construction

Flood Risk: Very low

Broadband: FFTP - Fibre to the property directly.

Ultrafast broadband with speeds of up to 1800 Mbps is available at the property (Ofcom).

Mobile signal/coverage: No known issues, buyers to check with their provider for further clarity.

Spencers of the New Forest

Spencers of the New Forest

56 Brookley Road
Brockenhurst
Hampshire
SO42 7RA

+44 (0)1590 622551

Reference: 29338426

Request a viewing for this property

Simply fill out the form below or alternatively call us on 020 7839 0888

* Mandatory fields